

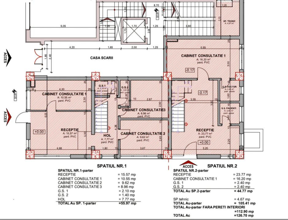
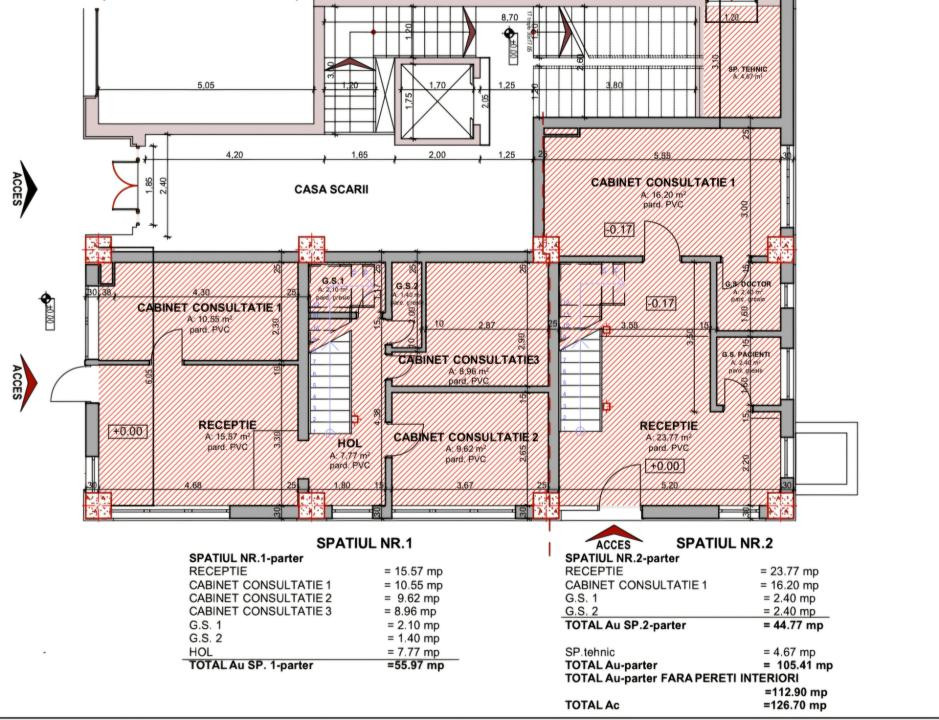
Va propunem spre vanzare doua spatii comerciale cu o suprafata totala de 160mp utili in apropriere de Spitalul de Recuperare.
Spatiile au intrari separate sunt compartimentate, sunt pe doua nivele, ideal pentru un cabinet medical, salon de infrumusetare, birouri.
Comparimentarea este urmatoarea:
- SC1 are 4 camere, 1 depozit, 2 grupuri sanitare
-SC2 are 4camere, 1 depozit, 2 grupuri sanitare
Se vand de pe persoana fizica, nu se adauga TVA!
Va asteptam la vizionare! P13618