





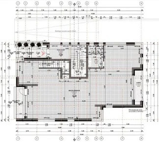
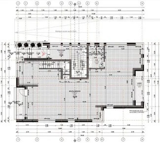
Bling Imobiliare va propune spre vanzare un spatiu comercial cu suprafata utila de 220 mp, aflat la parterul unui imobil constructie noua, in zona Grand Hotel Italia.
Suprafata utila este de 220 mp, cu urmatoarea compartimentare: parter 126 mp si demisol 84 mp.
Spatiul se preda la stadiul de semifinisat, are sapa autonivelanta, utilitatile trase pe pozitie, compartimentarea conform schitei.
Pretul include 2 locuri de parcare subterane.
Spatiul este ideal pentru clinica (inaltime 3m) sau alte activitati comerciale.
CF disponibil.
Pentru mai multe informatii sau programarea unei vizionari nu ezitati sa ne contactati! Id Extern: P7895