


BLING Imobiliare vă propune spre vânzare un spațiu comercial situat la parterul unei clădiri noi din cartierul Bună Ziua.
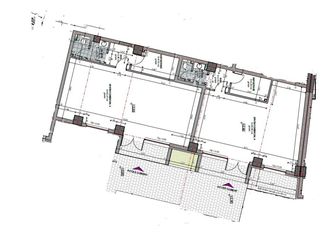
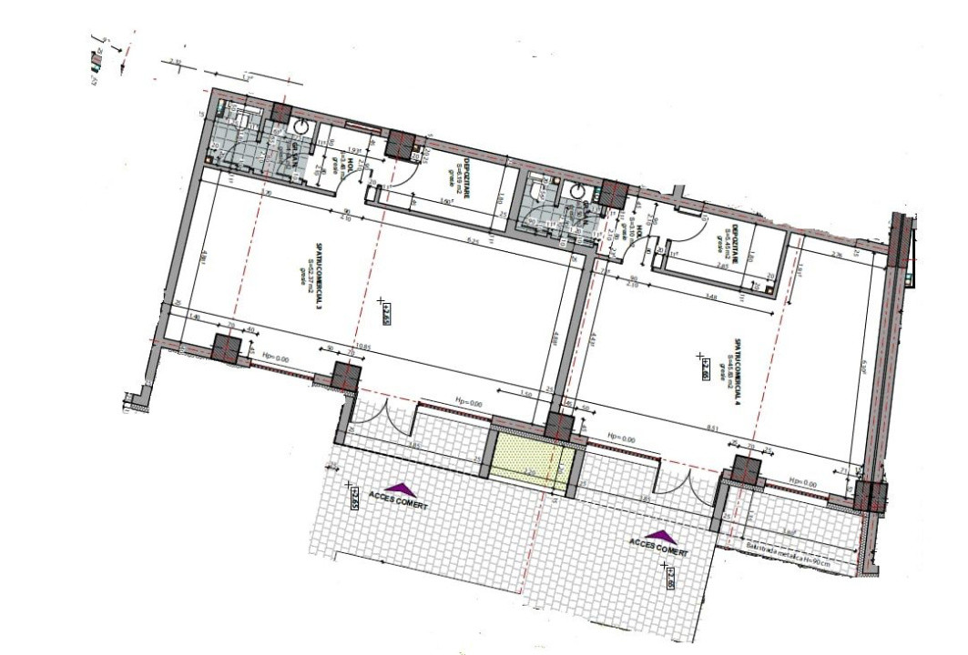
Spațiul are o suprafață utilă de 125 mp, suprafața construită este de 144 mp, iar compartimentarea este open-space, cu posibilitatea de recompartimentare.
De asemenea, deține 1 spațiu pentru depozitare și 1 grup sanitar.
Beneficiază de curent trifazic, iar înălțimea interioară este de 3 m, iar în prețul afișat sunt incluse și 2 parcări la subteran.
Ansamblul rezidențial deține certificare „Clădire Verde” de către BREEAM – Building Research Establishment Environmental Assessment Method.
Beneficiile unui imobil cu certificare de „Clădire Verde”:
Clasa energetică A presupune un consum mai mic de 125 kWh/m²/an;
Certificarea ambientală înglobează, pe lângă factorul ecologic, și aspectele sociale și economice;
Certificarea folosind sistemul BREEAM garantează o examinare actualizată constant, urmărind 10 aspecte diferite: management, sănătate și bunăstare, energie, transport, materiale, deșeuri, apă, utilizarea terenului și ecologie, poluare, inovație;
Costuri reduse cu întreținerea datorate eficienței energetice;
Beneficii pe termen lung asupra calității vieții în toată complexitatea sa.
În imediata apropiere a imobilului regăsim diverse puncte de interes, precum: Lidl, Mega Image, La Doi Pași, Panemar, Carmangeria Moldovan, 18Gym, Revo Fitness Club, stații de autobuz pentru liniile 40, 40S, 43B, 45, 21, M11, M12, restaurante, cofetării, benzinării, farmacii etc.
Există posibilitatea de a prelua contractul actual de chirie.
Vă așteptăm la vizionare!
ID: P12335