
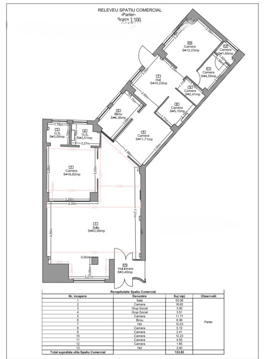
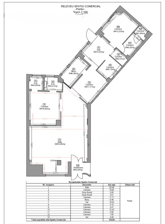
Va propuem spre vanzare un spatiu comercial in Cluj Napoca pe strada Calea Dorobantiilor, la parterul unui bloc.
Spatiul are o suprafata utila de 133mp si este compartimentat in mai multe incaperi.
In momentul de fata, in spatiul respectiv functioneaza un salon de bronzare.
Spatiul este inchiriat pe perioada de 5 ani cu posibilitate de prelungire.
Pentru mai multe detalii, va asteptam sa ne contactati !
P11920