













Va propunem spre vanzare case tip duplex intr-un ansamblu nou construit in zona Tauti.
Casele dispun de 4 camere, au o suprafata de 135mp utili si 200mp de teren si se vor preda semifinisate.
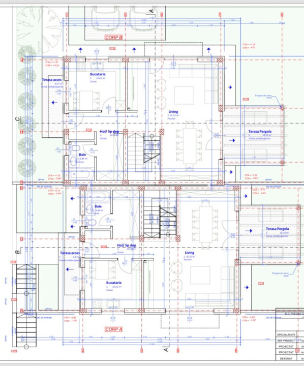
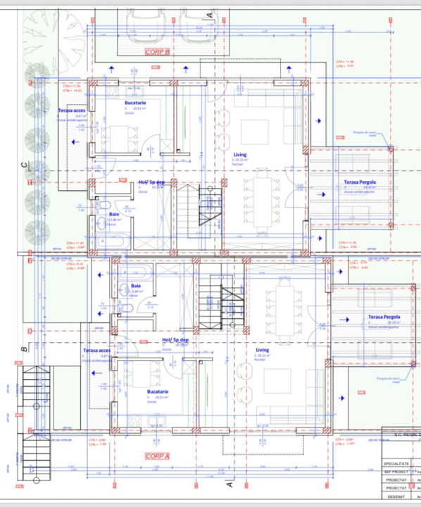
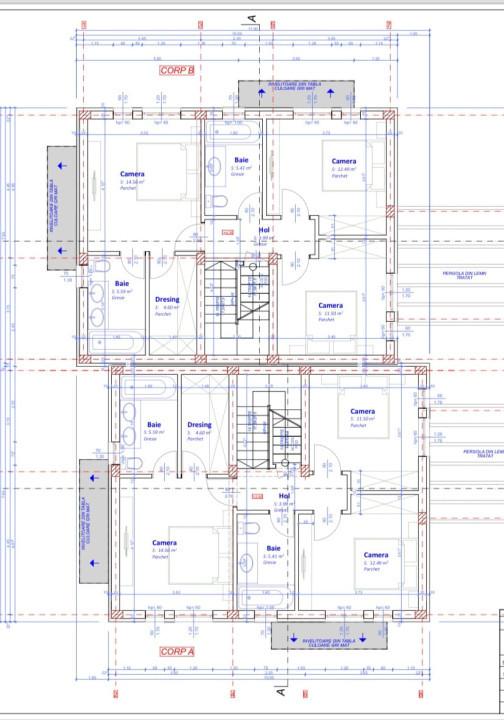
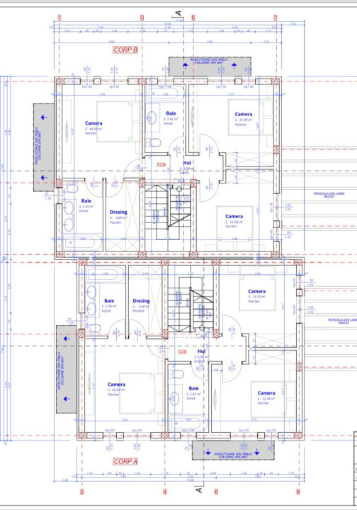
Compartimentarea este semidecomandata si se prezinta astfel:
Parter: 1 living plus bucatarie si iesire in curte, 1 baie mare cu geam, 1 debara si 1 terasa
Etaj: 3 dormitoare din care 1 matrimonial cu baie proprie, dressing si acces pe balcon de la etaj.
Pod open space.
Zona este retrasa de la strada principala ferita de zgomot si aglomeratie.
Accesul catre oras se face pe o strada principala avand mijloace de transport in comun.
Este ideala pentru un cuplu tanar cu copii sau pentru o familie numeroasa avand suficient spatiu pentru fiecare membru al familiei.
Pentru mai multe detalii va asteptam la vizionare.
Id extern: P5473