




















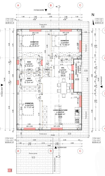
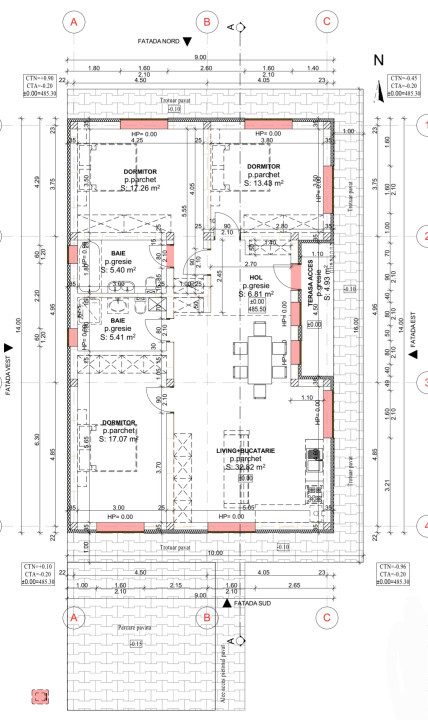
Va propunem spre vanzare o casa individuala pe un singur nivel cu suprafața utila de 100mp si amplasata pe un teren de 500mp.
Casa face parte dintr-un ansamblu de 14 case individuale , situate pe o strada privata care o sa fie predata la stadiul de asfalt de catre constructor .
Compartimentarea este urmatoarea: 3 dormitoare , 2 bai , living spatios cu bucatarie.
Zona linistita , la marginea padurii , ofera linistea de care are nevoie cineva dupa o zi de munca in oras .
casele o sa fie predate semifinisate , incalzire in pardoseala , centrala termica, tamplarie Salamander cu 3 sticle .
La pretul afisat se adauga TVA
Pentru mai multe detalii si pentru a programa o vizionare , va asteptam cu un apel .
Id Extern P9778