









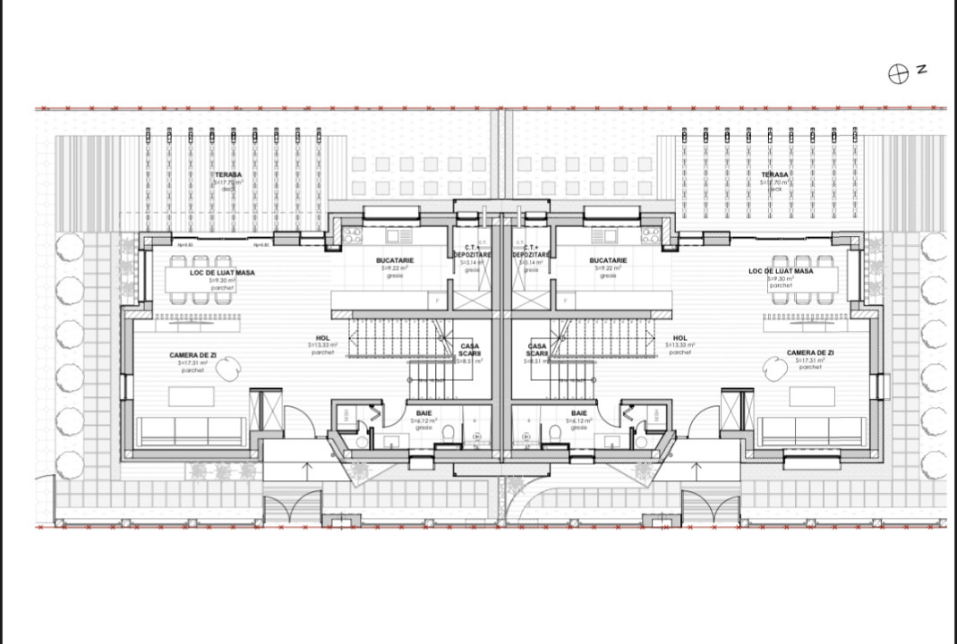
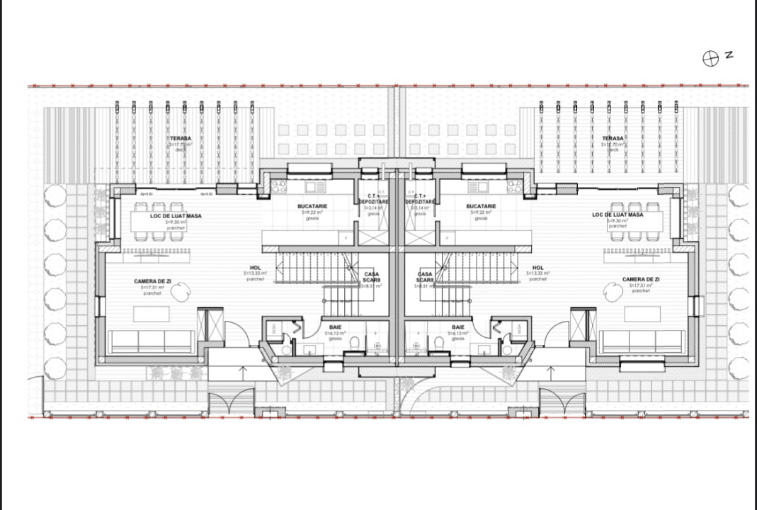
BLING Imobiliare vă oferă spre vanzare duplex cu 4 camere si 281 mp de teren. Acesta este amplasat in zona Dumitru Tăuțan, este construit din caramida si se predă la stadiul de semifinisat, dispune de incalzire in pardoseala, tamplarie PVC cu geamuri termopan. Este dispus pe 2 niveluri si compartimentat astfel: Parter; hol, bucatarie, loc de luat masa, living, baie, casa scării si loc de depozitare. Etaj; hol, 3 dormitoare, 2 bai, dressing. Pentru mai multe informatii nu ezitati sa ne contactati.
ID extern: P10355