







Va propunem spre vanzare o casa individuala intr-o zona linistita a Clujului.
Casa individuala cu o suprafata utila de 140mp utili, un garaj de 22mp utili pentr o masina si este amplasata pe un teren de 588mp utili .
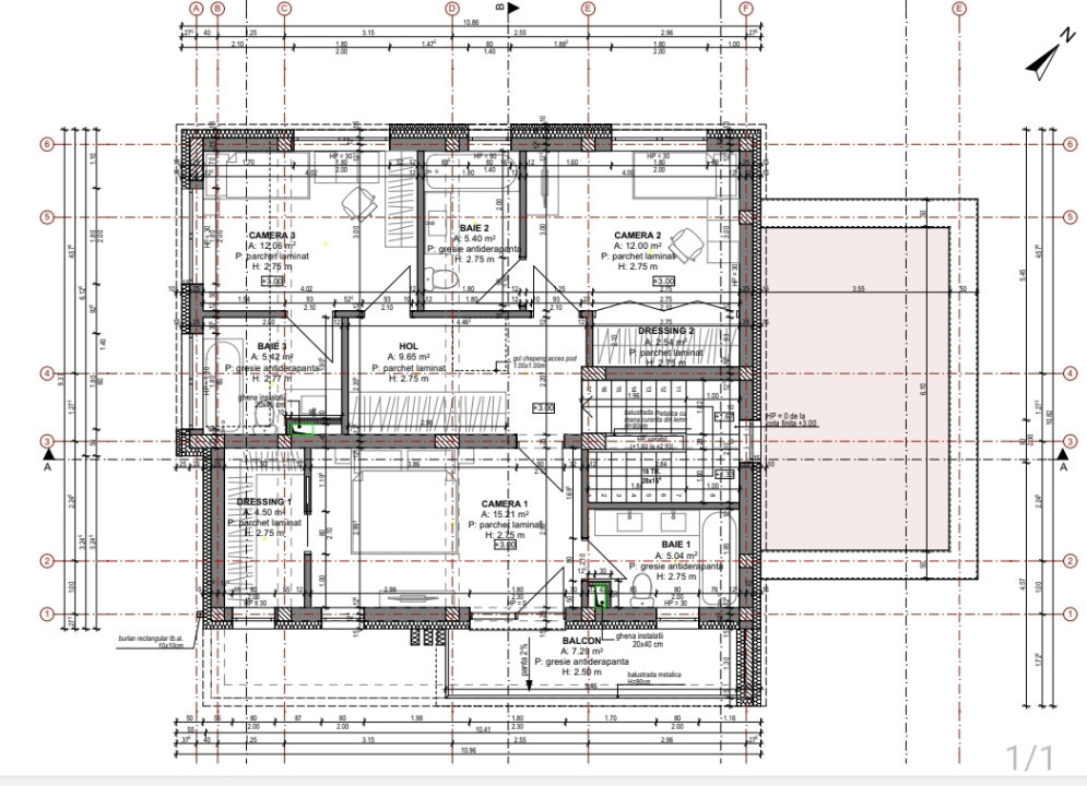
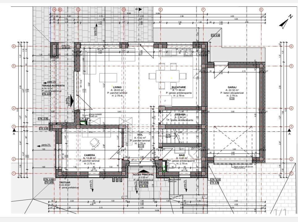
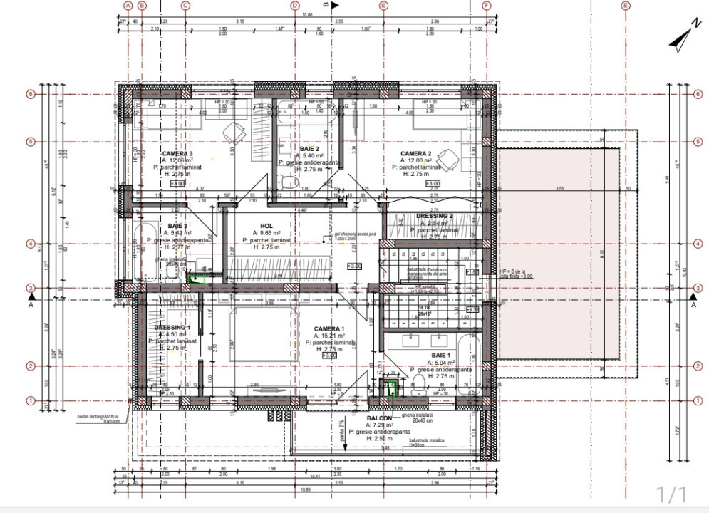
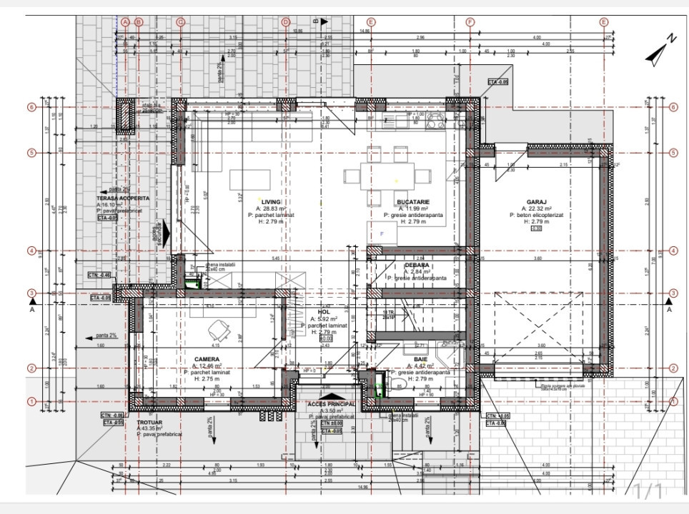
Casa este compartimentata in felul urmator :
Parter - Living open-space cu bucatarie, garaj, debara, baie, si un birou/dormitor cu o suprafata de 12,5mp, si o terasa acoperita de 16mp.
Etaj - 3 dormitoare , fiecare cu baie proprie si dresing, si un balcon.
Ca si utilitati : Gaz, apa, curent, statie de epurare.
Va asteptam la vizionare !
Id Extern : P5847