

Va propunem spre vanzare case tip duplex intr-un ansamblu privat de 24 de duplexuri situat in apropierea padurii in Comuna Chinteni.
Casele sunt situate în mijlocul naturii, la doar 15 kilometri de centrul orașului Cluj-Napoca si la doar 10 min cu masina de Centrul Comercial Auchan Iris.
Suprafata terenului este de 350 mp per unitate cu teren liber de aprox 250 mp.
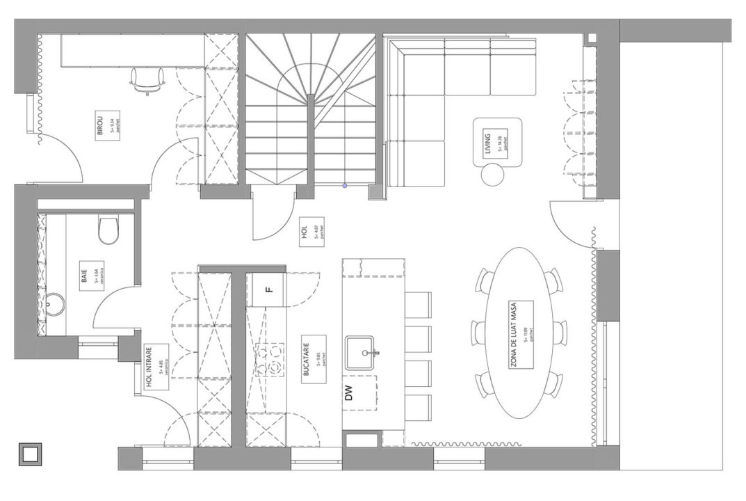
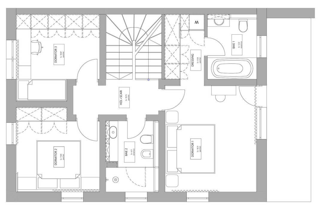
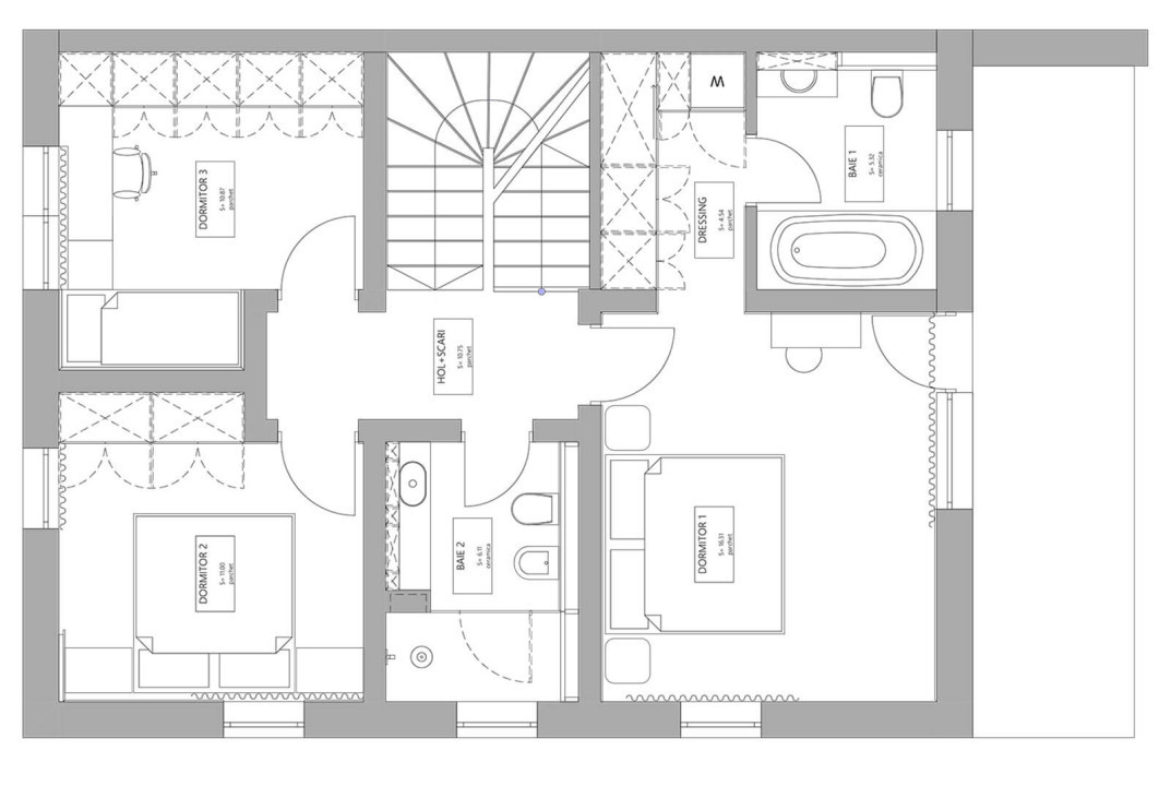
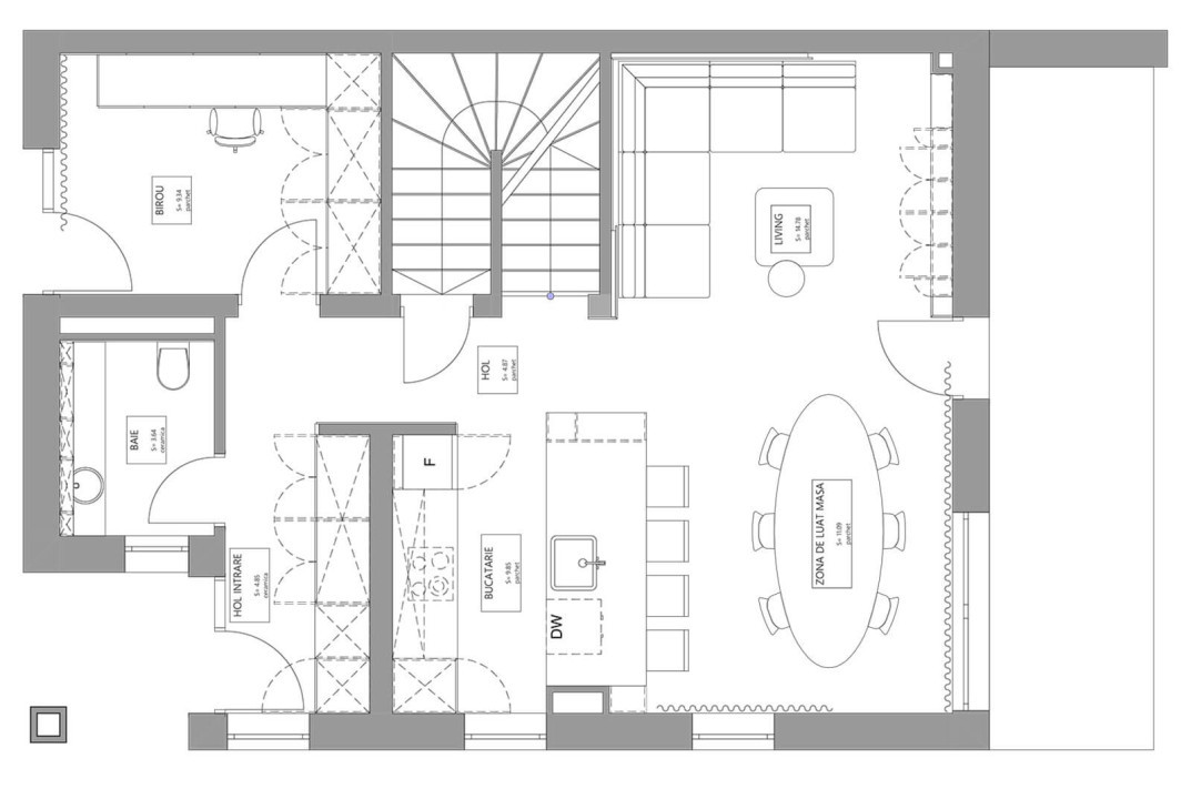
Casele dispun de o suprafata utila de 120 mp plus terasa si balcon de aprox 13 mp fiecare, compartimentarea este semidecomandata si dispusa pe 3 niveluri astfel:
Parter: Hol, living plus bucatarie, birou, spatiu de depozitare, baie, terasa
Etaj: Hol, dormitor matrimonial cu baie si dressing, doua dormitoare, baie si balcon
Pod care se poate amenaja.
Casele din acest complex rezidențial sunt prevăzute cu instalații electrice inteligente-sistem Smart Home, pompe de caldura, panouri fotovoltaice pe acoperis.
Stadiul de predare este semifinisat si dispun de tamplarie PVC culoare gri antracit, incalzire în pardoseala, inclusiv în bai, pereti interiori tencuiti și cu un strat de glet, instalatii termice, sanitare și electrice trase pe pozitii, bransamentele de apa, curent și canalizare pe proprietate și trase pe poziție, statii de incarcare masini electrice.
Casele sunt construite la standarde de inalta calitate, pereti exteriori din caramidă de 25 cm grosime + polistiren de 15 cm grosime, pereti interiori din caramidă de 25 cm grosime, dubla termoizolatie cu celuloza (din lana de lemn), tavan, acoperis;
O locuinta echipata cu un sistem Smart Home ofera mai mult confort, eleganta si reducerea costurilor de intretinere prin optimizarea consumului de energie.
Acest ansamblu de case este ideal pentru o familie care cauta liniste, natura si confort in apropierea orasului Cluj Napoca.
Pentru mai multe detalii sau stabilirea unei vizionari nu ezitati sa ne contactati.
ID Extern: P7573