



Va propunem spre vanzare aceasta casa insiruita situata intr-o zona accesibila a Florestiului, aproape de magazine, supermarketuri, farmacii, mijloace de transport in comun, etc.
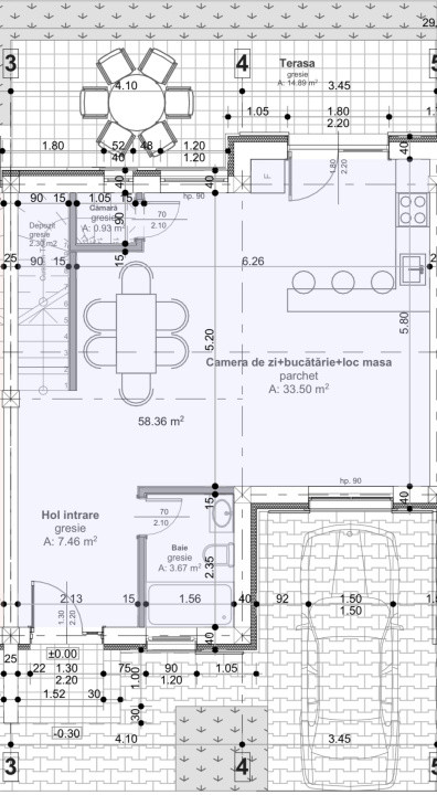
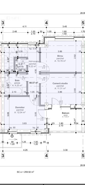
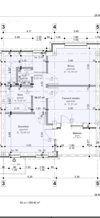
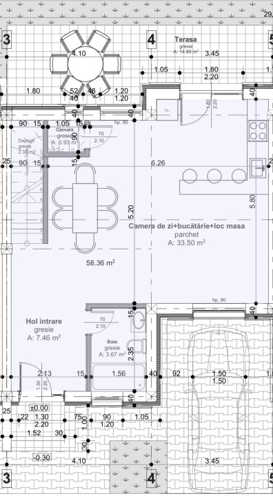
Casa dispune de o suprafata utila de 95.81mp utili plus o terasa de 14.91 mp plus un balcon de 7.29 mp, compartimentarea este semidecomandata si se prezinta astfel:
Parter: hol, living plus bucatarie, cămară, baie si terasa
Etaj: hol, 3 dormitoare, baie si un balcon
Casa se va preda la stadiul de semifinisat, peretii gletuiti, geamuri termopan PVC, usa la intrare si centrala proprie cu incalzire in pardoseala.
Termen de finalizare Decembrie 2025
Termen de predare cu CF Februarie 2026
Pentru mai multe informatii sau stabilirea unei vizionari va rugam sa ne contactati!
ID Extern: P10354