




Bling ofera spre vanzare constructie renovabila cu proiect autorizat de reabilitare partiala in cea mai cautata zona a orasului, respectiv Andrei Muresanu in apropierea strazii Nicolae Titulescu.
Proprietatea se afla la intersectia dintre 2 drumuri astfel avand deschidere la 2 fronturi.
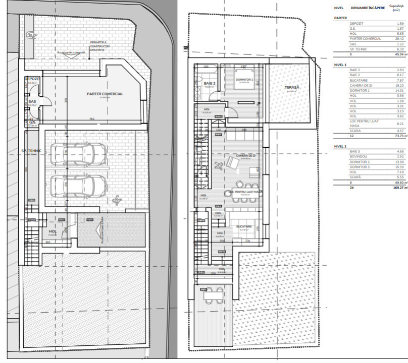
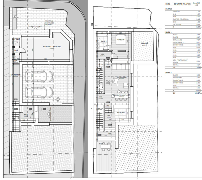
Cladirea existenta este una veche cu regim de inaltime Parter iar proiectul presupune un regim de inaltime P+1+R.
La parter: SPATIU COMERCIAL/DEPOZIT/GRUP SANITAR/HOL/SAS/SP. TEHNIC cu suprafata utila totala de 45.94mp
Etaj 1: LIVING+BUCATARIE/DORMITOR/BAIE/HOL /TERASA cu suprafata utila totala de 73.73mp +14.57 mp de terasa
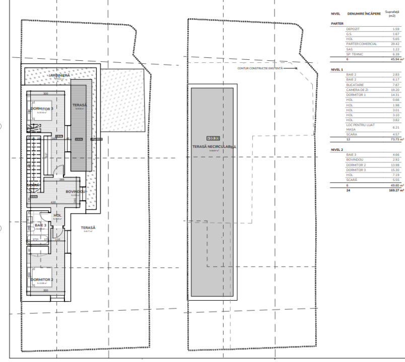
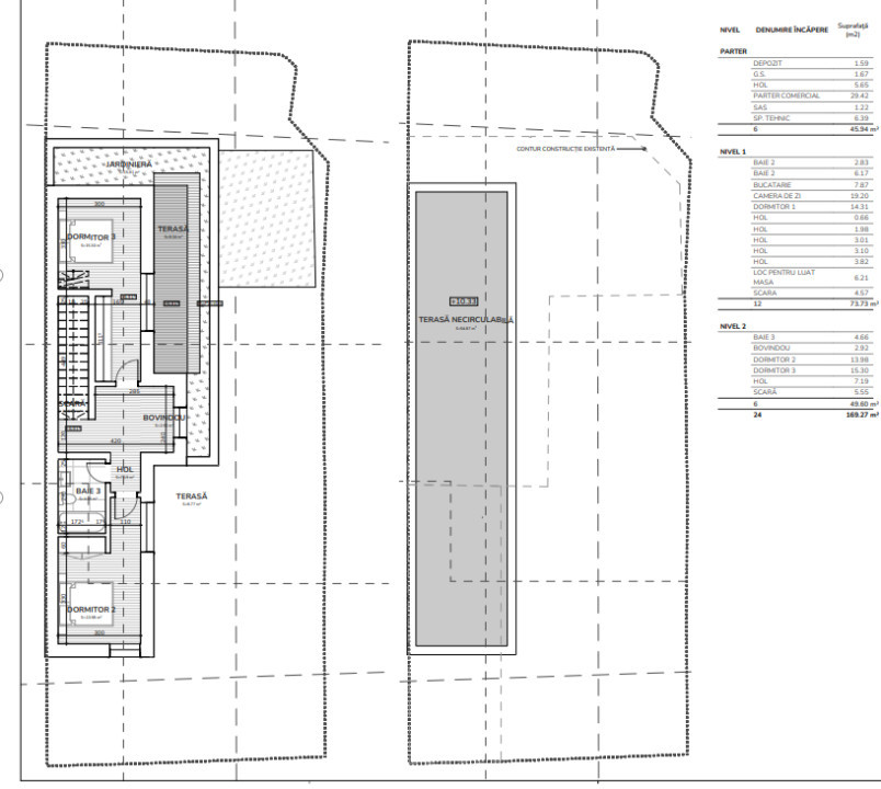
Etaj Retras: 2 DORMITOARE/ BAIE/ DRESSING/ HOL /TERASA cu suprafata utila totala de 49.6 mp plus 8.34 mp de terasa
Pentru a va pune la dispozitie toate informatiile legate de acest proiect asteptam sa ne contactati. ID:P8485