






Va propunem spre vanzare un teren ideal de investitie!
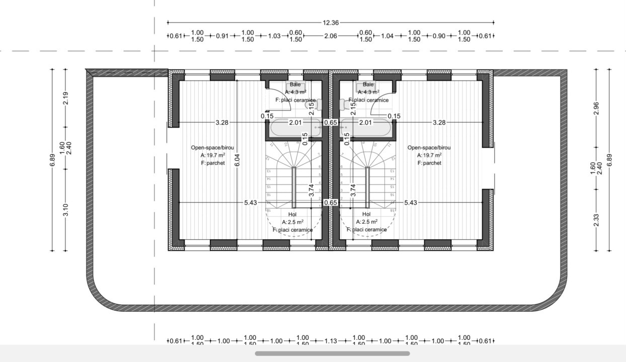
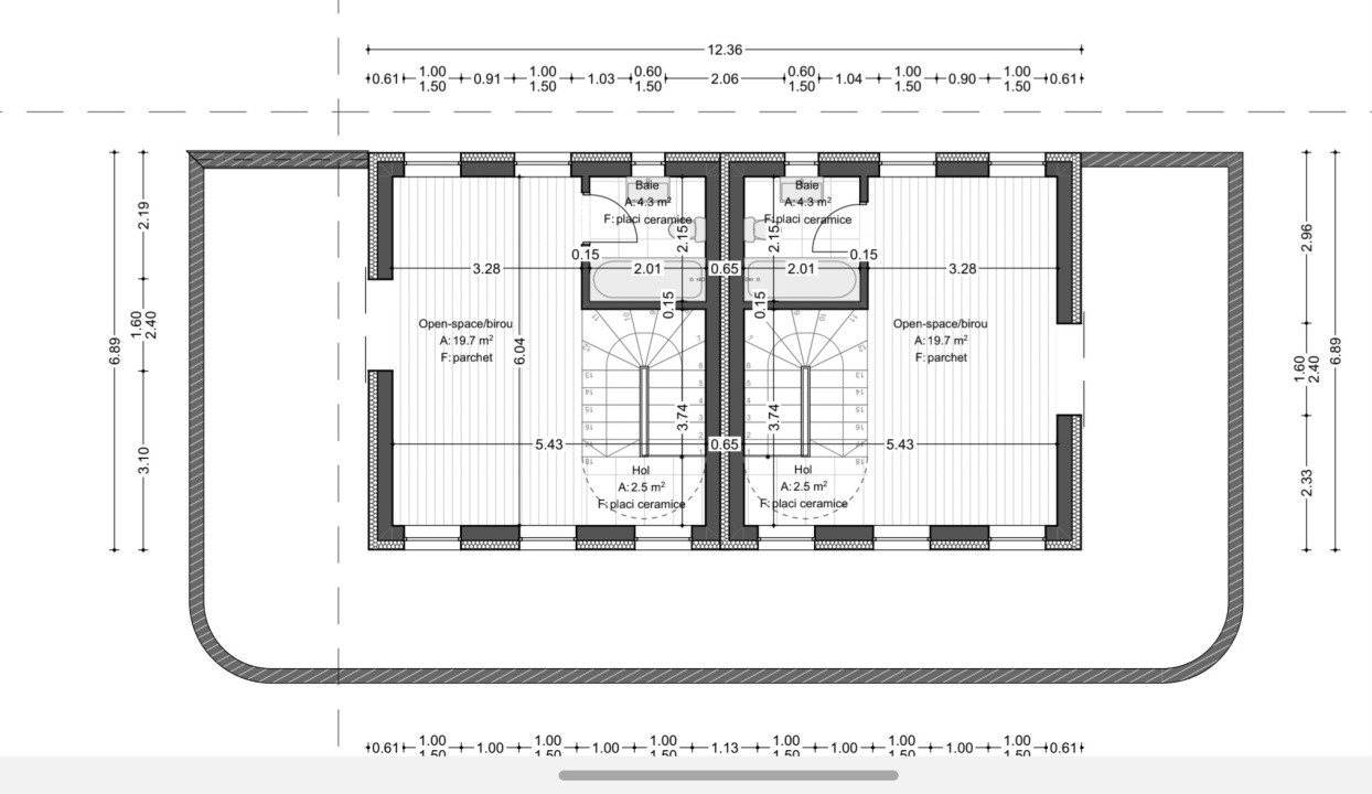
Terenul in suprafata de 630mp este autorizat pentru un duplex cu un regim de inaltime S+P+1+Er cu o suprafata utila de 160mp utili/ unitate + 15mp balcon si 40mp de terasa pentru fiecare unitate si un subsol tehnic de 60mp utili.
Terenul se preda autorizat si gata de inceperea constructiei!
Pentru mai multe detalii, va asteptam la vizionare !
Id extern
P10126