







Bling Imobiliare propune spre vânzare un teren situat în cartierul Mănăștur, într-o zonă accesibilă și bine poziționată, ideal pentru dezvoltare rezidențială sau mixtă. Proprietatea are o suprafață de 598 mp și dispune de toate utilitățile necesare: apă, gaz, canalizare și curent electric.
Terenul beneficiază de autorizație de construcție pentru o clădire cu regim de înălțime S+P+E+Pod, concepută modern și funcțional:
Subsolul este prevăzut cu 4 garaje auto.
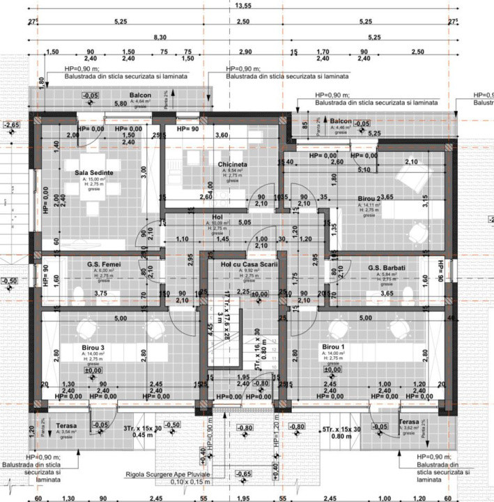
Parterul oferă un spațiu pentru servicii sau activități comerciale, cu acces public și o suprafață utilă de 90 mp.
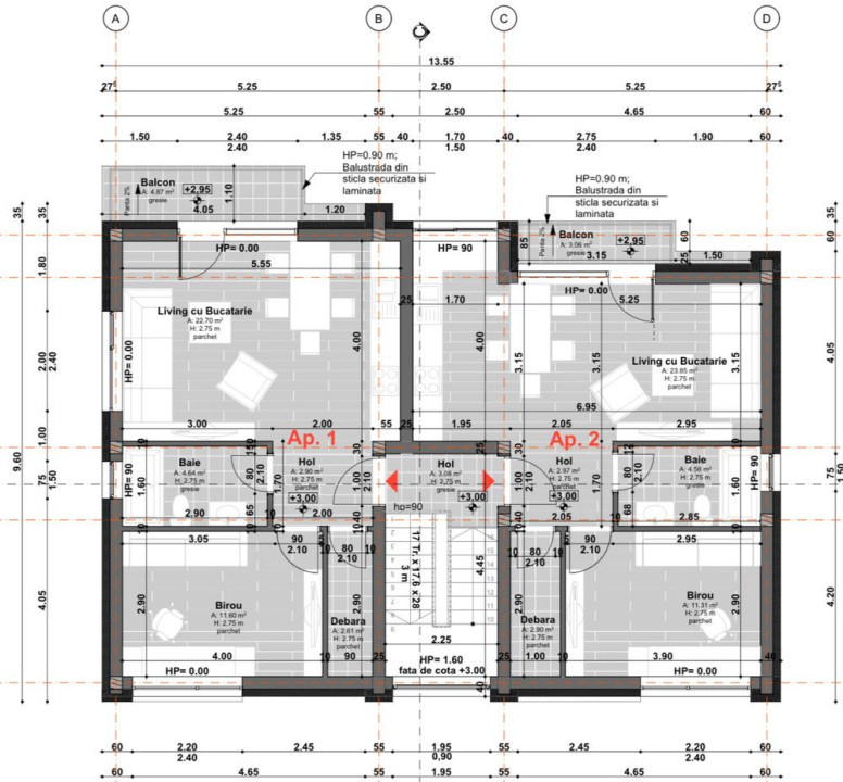
Etajul și podul sunt proiectate pentru două apartamente spațioase, fiecare cu o suprafață utilă de 90 mp.
Proiectul este ideal pentru investitori sau dezvoltatori care doresc să valorifice potențialul unei zone dinamice și bine conectate din Cluj-Napoca. Documentația este completă, iar autorizația de construire este emisă și valabilă.
Pentru mai multe detalii și vizionare, nu ezitați să ne contactați. ID Extern P11725