







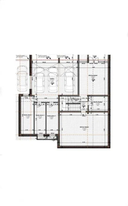
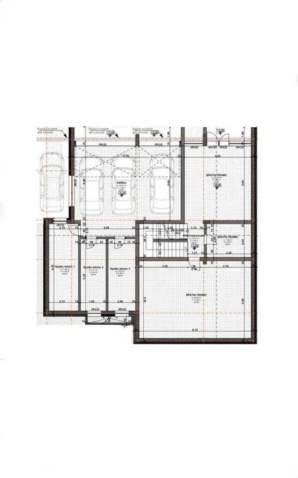
Bling va propune spre inchiriere un spatiu comercial cu suprafata utila de 278 mp, aflat la demisolul unui imobil nou, in zona Spitalului de Recuperare din cartierul Zorilor. Suprafata utila este de 278 mp, formata din parter 187 mp si demisol 91 mp. Spatiul se preda la stadiul de semifinisat, are sapa autonivelanta, utilitatile trase pe pozitie, compartiemntarea conform schitei. Pretul include 4 locuri de parcare subterane. Spatiul este ideal pentru clinica sau alte activitati comerciale. Pentru mai multe informatii sau programarea unei vizionari nu ezitati sa ne contactati! Id Extern P7887