
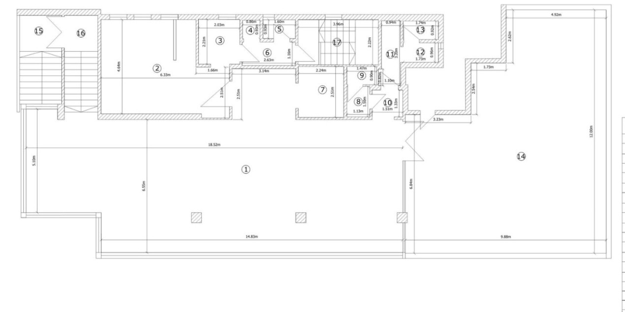
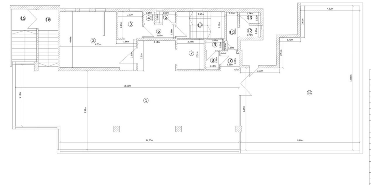
Va prezentam un spatiu pentru alimentatie publica de 174mp la etajul 1 cu o terasa de 96mp, in cartierul Gheorgheni.
Acesta are maxima vizibilitate .
Spatiul a functionat ca restaurant si are toate cele necesare pentru a merge pe aceeasi directie.
Pentru mai multe detalii va asteptam la vizionare sa vedeti despre ce este vorba mai exact. ID PROPRIETATE: P10520