
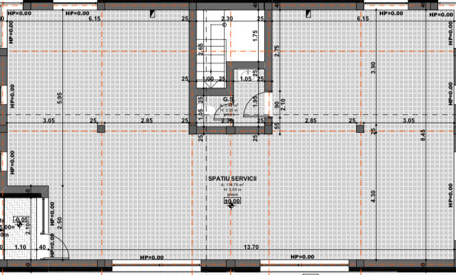
Va propunem spre vanzare acest spatiu comercial amplasat intr-o zona de case. Spatiul dispune de o suprafata utila de 114,75 mp si o inaltime de 3m. Se vinde la stadiul de semifinisat , cu centrala proprie, incalzire in pardoseasla, geamuri tripan cu tamplarie PVC, Rehau - 7 camere si usa la intrare. Imobilul este construit la cele mai inalte standarde, caramida de 30cm cu vata de 10 cm intre peretii despartitori si polistiren de 15 cm. Pentru mai multe detalii sau stabilirea unei vizionari nu ezitati sa ne contactati! ID extern: 9137