





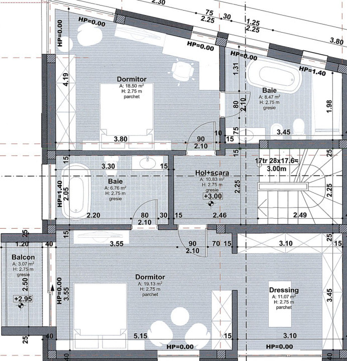
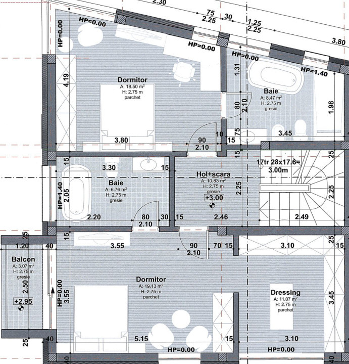
Va propunem spre vanzare o unitate de duplex, cu arhitectura moderna, amplasat intr-o zona de case, cu o panorama spectaculoasa asupra Clujului. Imobilul are o suprafata utila de 179,34 si este dispus astfel:
Parter: Hol, sufragerie, bucataria separata, o camera si o baie.
Etaj 1: hol, dormitor cu baie proprie si un dormitor matrimonial cu dressing , baie proprie si un balcon de 3mp.
Etaj 2: Un hol spatios, 1 dormitor cu baie proprie si o terasa de 32,63 mp.
Se vinde la stadiul de semifinisat, cu centrala proprie, incalzire in pardoseasla, geamuri tripan cu tamplarie PVC, Rehau - 7 camere si usa la intrare.
Imobilul este construit la cele mai inalte standarde, caramida de 30cm cu vata de 10 cm intre peretii despartitori si polistiren de 15 cm.
Daca acest duplex vi se pare cel putin interesant, va invitam la o vizionare!
ID: P9133