




























BLING Imobiliare vă propune spre vânzare o casă individuală, situată în zona Eugen Ionesco, cartier Europa.
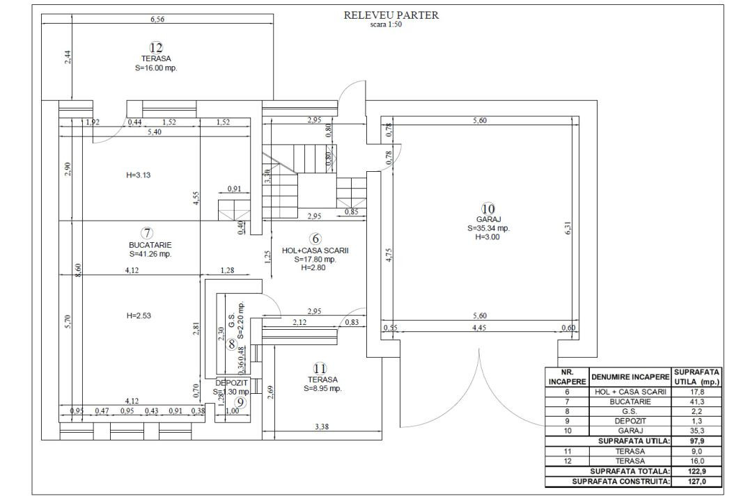
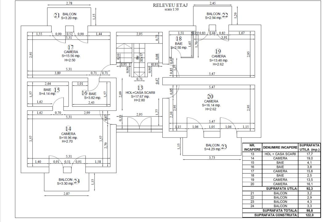
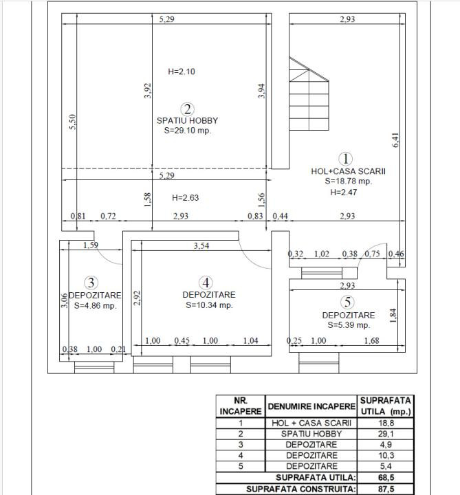
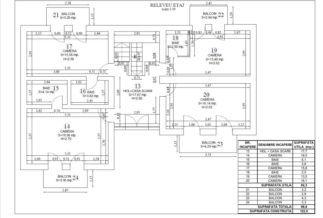
Imobilul este dispus pe 3 niveluri (demisol, parter și etaj 1) și are o suprafață utilă de aproximativ 400 mp, fiind amplasat pe un teren de 1300 mp.
Compartimentarea este următoarea:
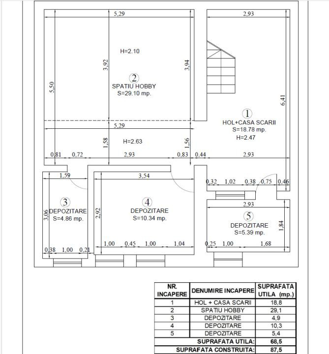
Demisol: spațiu open space, cameră tehnică (centrală), o încăpere separată și cameră servere
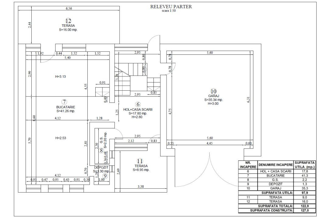
Parter: open space luminos, hol, baie și garaj
Etaj: 4 camere, 3 băi și hol.
În plus, proprietatea dispune de 6 terase cu o suprafață totală de aproximativ 50 mp, ideale pentru zone de relaxare.
Casa se vinde nemobilată.
Necesaită renovări la nivel de finisaje.
Terenul are o suprafață de 1.150 mp (conform CF), însă după măsurătorile recente, reier 1.300 mp. Este complet împrejmuit și amenajat cu arbori ornamentali, oferind un cadru plăcut și intim.
Vă așteptăm la vizionare!
ID: P13901