





**Bling Imobiliare vă propune spre vânzare o casă individuală modernă, situată într-o zonă liniștită și bine conectată din Jucu de Sus, Cluj – Str. Mureșului **
Această proprietate reprezintă alegerea ideală pentru o familie care își dorește confort, funcționalitate și acces rapid către punctele de interes din zonă.
---
### 📍 **Localizare & Avantaje**
* Zonă exclusiv de case, liniștită și aerisită
* Stradă asfaltată, cu iluminat public
* Aproape de centru, primărie, pompieri
* Acces facil către școală și grădiniță
* Toate utilitățile disponibile: apă, canalizare, gaz, curent, internet și TV
---
### 📐 **Date Tehnice**
* Suprafață construită: 157 mp
* Suprafață utilă: 112 mp
* Teren: 512 mp
* 2 locuri de parcare
---
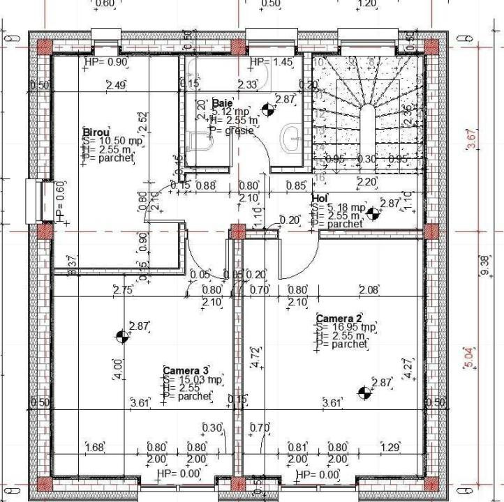
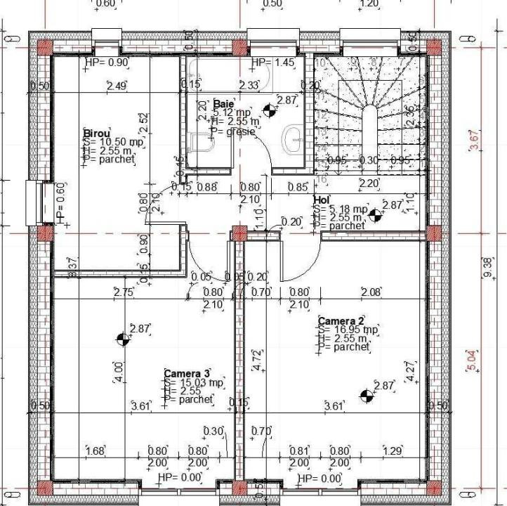
### 🏡 **Compartimentare inteligentă**
**Parter:**
* Hol de acces
* Bucătărie luminoasă
* Living spațios
* Dormitor
* Baie
* Spațiu depozitare / cameră tehnică
**Etaj:**
* Hol
* 2 dormitoare
* Birou (ideal pentru work-from-home sau cameră copil)
* Baie
---
### ⚙️ **Dotări & Confort**
* Centrală termică proprie
* Încălzire în pardoseală pe ambele niveluri
* Aer condiționat (living + dormitoare etaj)
* Instalație pregătită pentru automatizare poartă
---
### 🔑 **Opțiuni de achiziție**
Imobilul se poate achiziționa:
* **Semifinisat** (preț afișat – negociabil)
* **Finisat**, în funcție de preferințele cumpărătorului
---
✨ O locuință modernă, bine compartimentată, perfectă pentru cei care își doresc liniște, dar și acces rapid către facilitățile urbane.
📞 Pentru detalii suplimentare, fotografii sau programarea unei vizionări, vă invităm să ne contactați! P14120