











Oportunitate deosebită oferită de Bling imobiliare – o casă individuală modernă și versatilă, gândită să se adapteze nevoilor dumneavoastră! Iată o prezentare structurată a proprietății:
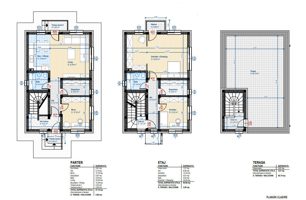
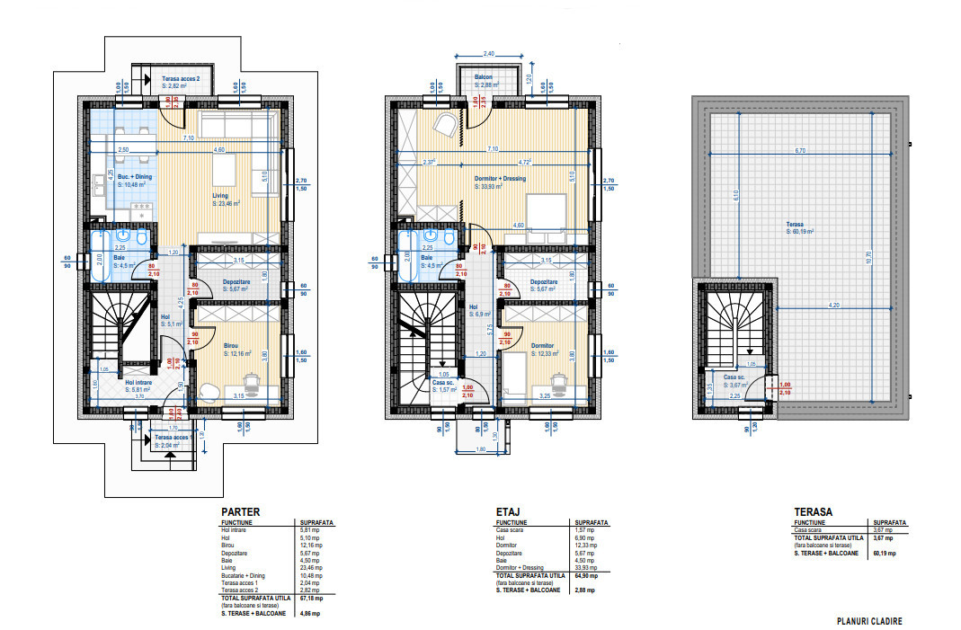
1. Informații Generale
• Suprafață utilă: 132 mp pe două nivele
• Terasa: 60 mp circulabil, perfectă pentru relaxare și socializare
• Complexul: Situat într-un ansamblu nou, cu case închise și barieră de acces, în apropierea străzii Avram Iancu
2. Design și Compartimentare
Proiectată cu materiale de înaltă calitate, casa se remarcă printr-o compartimentare inteligentă ce permite, opțional, divizarea spațiului în două apartamente independente:
• Parter:
• Living spațios
• Bucătărie modernă
• Dormitor confortabil
• Baie elegantă
• Dressing generos
• Hol luminos și casa scărilor
• Etaj:
• Dormitor principal cu dressing
• Baie rafinată
• Hol plin de lumină
• Dormitor suplimentar cu dressing și balcon de 33 mp utili (bucuros de opțiunea de a fi împărțit în două dormitoare, dacă se dorește)
• Terasa (ultimul nivel):
• 60 mp circulabili, ideală pentru momente de relaxare sau pentru întâlniri cu cei dragi
3. Flexibilitate și Viitor
• Opțiunea de divizare: Datorită poziționării strategice a casei scărilor, este posibilă împărțirea în două apartamente distincte, câte unul pe fiecare nivel.
• Stadiul construcției: În curs de realizare, cu finalizare estimată pentru toamna acestui an.
4. Modalități de Achiziție
• Avans minim: 15%
• Finanțare: Achiziția se poate efectua fie prin surse proprii, fie prin credit bancar.
5. Contact și Vizionare
Nu ratați ocazia de a transforma această casă modernă în căminul dumneavoastră!
Pretul contine TVA!!
Contactați-ne pentru mai multe detalii sau pentru a programa o vizionare la fața locului, vă așteptăm cu drag!. ID:P8533