










Va propunem spre vanzare acest ansamblu de case situat la intrarea in Dezmir.
Proiectul cuprinde:
- Case tip duplex - 215000 euro plus tva
- Case unifamiliale - 225000 euro plus tva
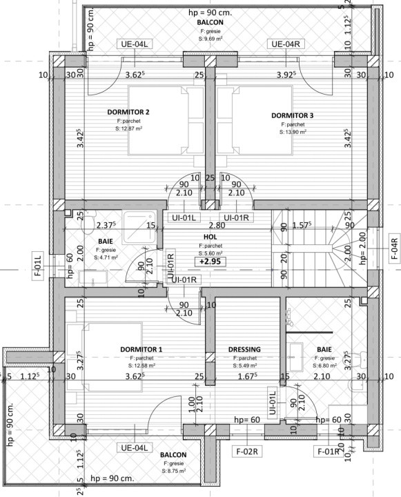
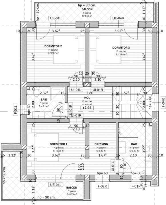
Casele au suprafete utile intre 120 si 140 mp, teren liber intre 200 si 300 mp.
Compartimentarea este semidecomandata si se prezinta astfel:
Parter: hol, bucatarie, zona de luat masa, sufragerie, baie, terasa
Etaj: hol, dormitor matrimonial cu dressing, balcon si baie proprie, inca doua dormitoare, balcon si baie
Casele se predau la stadiul de semifinisat cu geamuri termopan PVC, centrala proprie cu incalzire in pardoseala si usa la intrare.
Zona este una foarte accesibila, fiind in partea de jos, aproape de intrarea in Dezmir.
Pentru mai multe informatii sau stabilirea unei vizionari nu ezitati sa ne contactati.
ID Extern: P9954