















BLING Imobiliare va ofera spre vanzare casă cuplată, situată în cartierul Dâmbul Rotund.
Casa are o suprafață utilă de 163 mp la care se adaugă un pod de 30 mp si un regim de inaltime de S+P+M, compartimentat astfel:
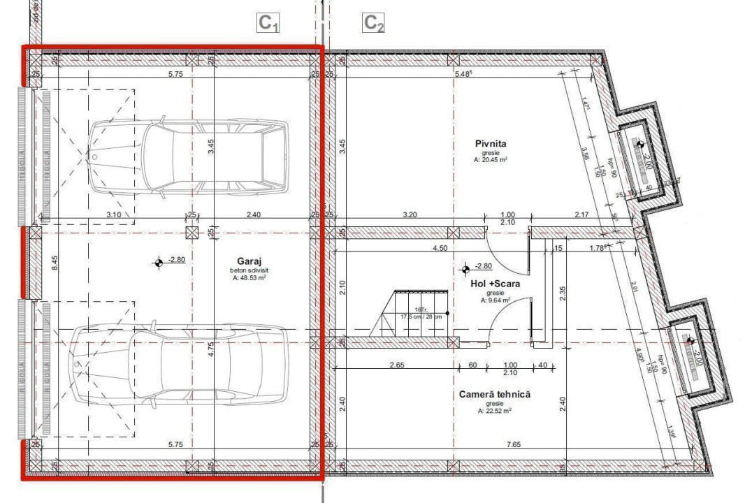
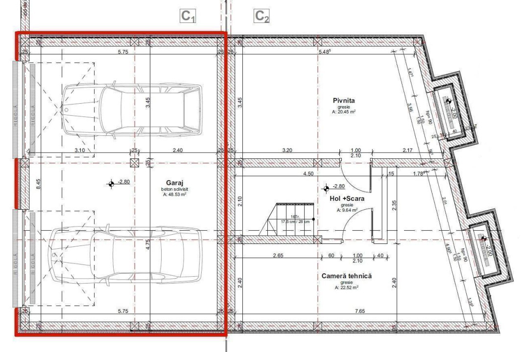
- subsol: 1 hol, 1 cameră tehnică, 1 pivniță;
- parter: 1 hol, 1 baie, 1 living cu bucatarie open-space;
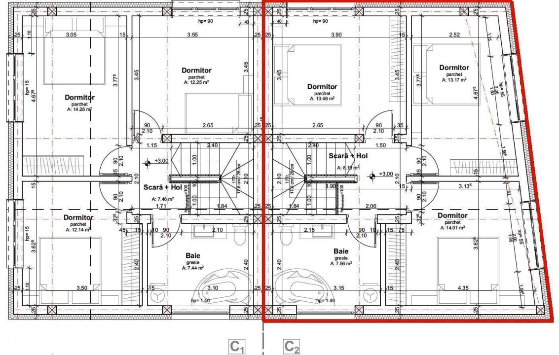
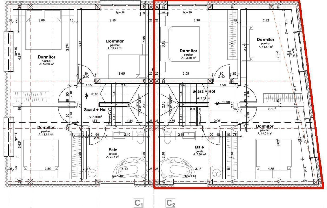
- etaj: 1 hol, 2 băi si 3 dormitoare;
- pod/spatiu de depozitare cu o suprafață de 30 mp.
Parcela de teren are 470 mp (cu tot cu amprenta) + 100 mp drum (50 mp pentru unitatea din fata, 50 mp pentru unitatea din spate), drumul este dezmembrat pentru primarie, dar se va trece pe noii proprietari. Primaria urmeaza sa asfalteze strazile din zona, si va cumpara cei 100 mp de la noii proprietari contra cost.
Casa beneficiază de toate utilitățile.
Casa se predă la stadiul de semifinisat, cu 2 mâini de glet și lavabil alb, geamuri termopan cu 7 camere, izolatie exterioara cu vată (15 cm), centrală termică proprie, încălzire în pardoseală, instalatii electrice si sanitare trase pe pozitie, acoperiș de tablă iar exteriorul amenajat.
Puncte de interes:
- gradinita la 50 de metri de imobil
- scoala gimnaziala la 700 de metri de imobil
- noul mall Rivus la 7 min distanta cu masina
Prețul afișat INCLUDE TVA.
Pentru mai multe detalii si programarea vizionarii nu ezitati sa ne contactati.
ID: P9576