








Va propunem spre vanzare casa de tip duplex in suprafata de 162 mp utili amplasata pe un teren de 250mp.
Imobilul este situat in zona Oasului.
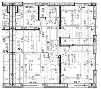
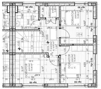
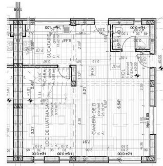
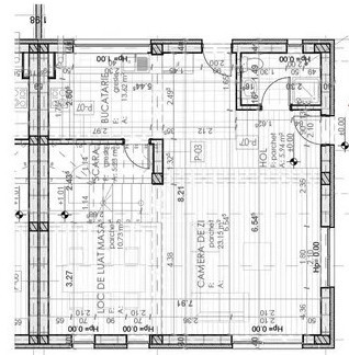
Regimul de inaltime este D+P+1 iar compartimentarea este facuta astfel:
-la demisol avem 2 garaje plus spatiu de depozitare,
-la primul nivel : 1 hol, 1 bucatarie, 1 living, 1 baie,
-la etaj : 3 dormitoare, 1 baie, 1 pod.
Se preda semifinisat, cu incalzire in pardoseala si POMPA DE CALDURA (mult mai eficienta decat centrala pe gaz), peretii cu tencuiala si tinci, sapa, exterior amenajat, instalatii electrice si de apa la pozitie, utilitati bransate.
Pentru mai multe detalii, nu ezitati sa ne contactati!
IDextern:P3938