









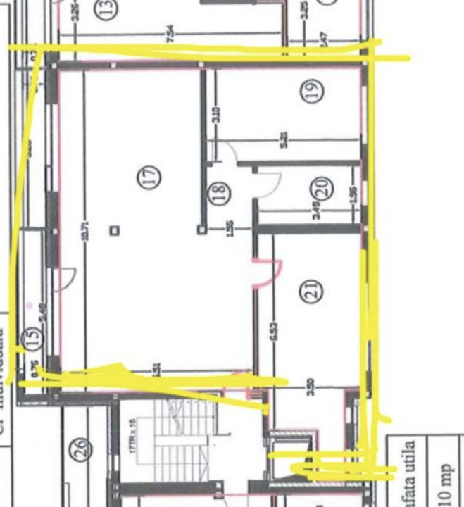
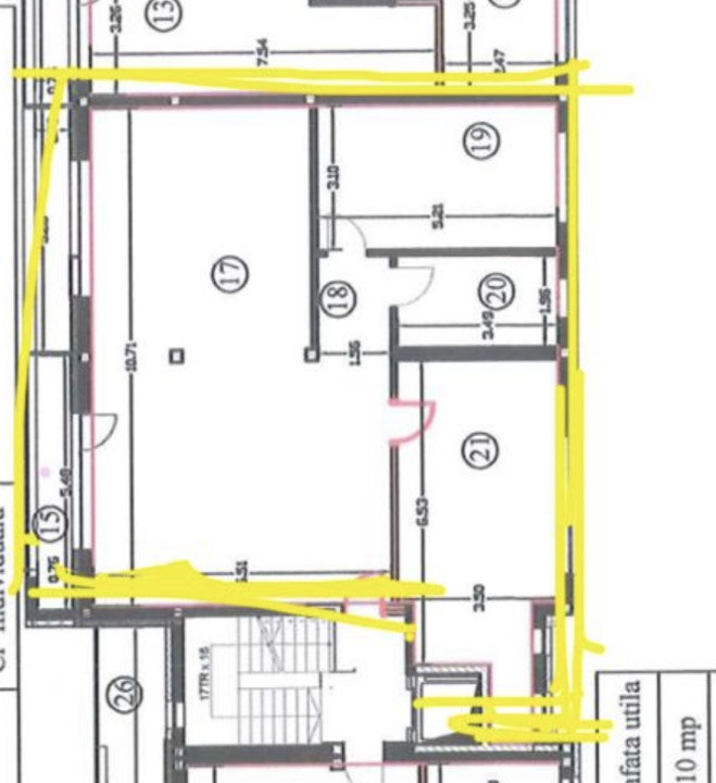
Va prezentam un apartament cu 3 camere, situat la etajul 1 al imobilului, intr-un ansamblu premium, in cartierul Andrei Muresanu.
Suprafata utila este de 110,11mp, compartimentata astfel: hol, living cu bucatarie tip open-space, 2 dormitoare, baie si un balcon de 5,56mp.
Se preda la stadiul de semifinisat oferind libertatea de a fi amenajat conform viitorilor proprietari.
Exista posibilitatea de a amenaja o a doua baie.
Se poate achizitiona si parcare daca se doreste, atat exterioara la 15.000€, cat si subterana la 20.000€ plus tva.
Avem mai multe tipuri de apartamente cu compartimentari diferite.
Pretul este de 3000€/mp plus tva, iar la balcon 1000€/mp plus tva.
Pretul final cu TVA inclus al apartamentului este de 406.426€.
Pentru mai multe detalii sau pentru programarea unei vizionari va rugam sa ne contactati. ID PROPRIETATE: P12291