
















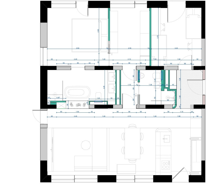
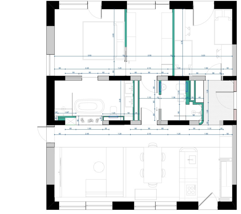
Va oferim spre vanzare un apartament cu 3 camere cu suprafata utila de 100 mp, tereasa de 50mp si o gradina privata de 100mp.
Imobilul va fii ultra premium, beneficiaza si de LIFT, la constructia lui se folosesc cele mai bune materiale de pe piata.
Este pozitionat la parterul unui bloc cu regimul de inaltime D+P+2.
Apartamentul are 2 locuri de parcare la subteran si o boxa de depozitare.
Compartimentarea decomandata se prezinta astfel: hol, living cu bucatarie, 2 dormitoare, 2 bai, un dresing mare o terasa de 50mp si o gradina de 100mp . Acesta este situat intr-un bloc pe structura de beton, imobilul este izolat termic si fonic, vata bazaltica de 15, fatada ventilata, beton amprentat la interior, caramida aparenta, instalatiile electrice, termice si sanitare finalizate, tamplarie PVC cu geam termopan, pompa de caldura, incalzire in pardoseala.
Imobilul beneficiaza de o terasa circulabila de 300mp pentru locatarii imobilului, dotata cu piscina, jacuzzi, sauna , fireplace, zona de dus si de barbeque.
Este situat intr-o zona foarte buna, aproape de viitorul parc din Zorilor, viitorul mall Oxigen, scoala ,facultati , spatii verzi si magazine.
Pentru mai multe detalii nu ezitati sa ne contactati! ID extern : P8040