
Va propunem spre vanzare apartament spatios și luminos cu 2 camere in zona Avram Iancu.
Este pozitionat la etajul 1 al unui bloc cu regimul de inaltime S+P+6E+1 ER, termenul de finalizare fiind in iulie 2024 iar CF-urile in septembrie 2024.
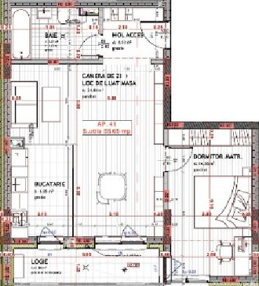
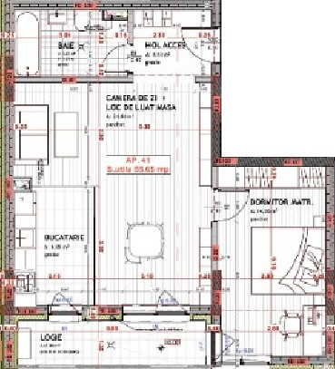
Compartimentarea este semidecomandata, suprafata utila este de 55,65 mp. si se prezinta astfel: hol, baie, bucatarie open space cu livingul, dormitor si balcon de 7 mp.
Proiectul dispune de apartamente cu 1, 2, 3 si 4 camere care se vor preda semifinisate, cu sapa autonivelanta, doua randuri de glet, usa metalica la intrare, ferestre termopan cu 7 camere, instalatii trase pe pozitie, centrala termica cu incalzire in pardoseala .
La cerere se poate achizitiona loc de parcare subterana la pretul de 6000 euro+TVA sau parcare exterioara la pretul de 4000 euro+TVA.
Pretul apartamentului pentru stadiul de semifinisat este de 1600 euro/mp+Tva de 19%, garajul sau parcarea exterioara fiind cu Tva de 19%.
Pentru stadiul de finisat pretul apartamentului va fi de 1750 euro/mp+TVA de 9%, garajul sau parcarea exterioara fiind cu Tva de 9%.
Id extern: P1826