
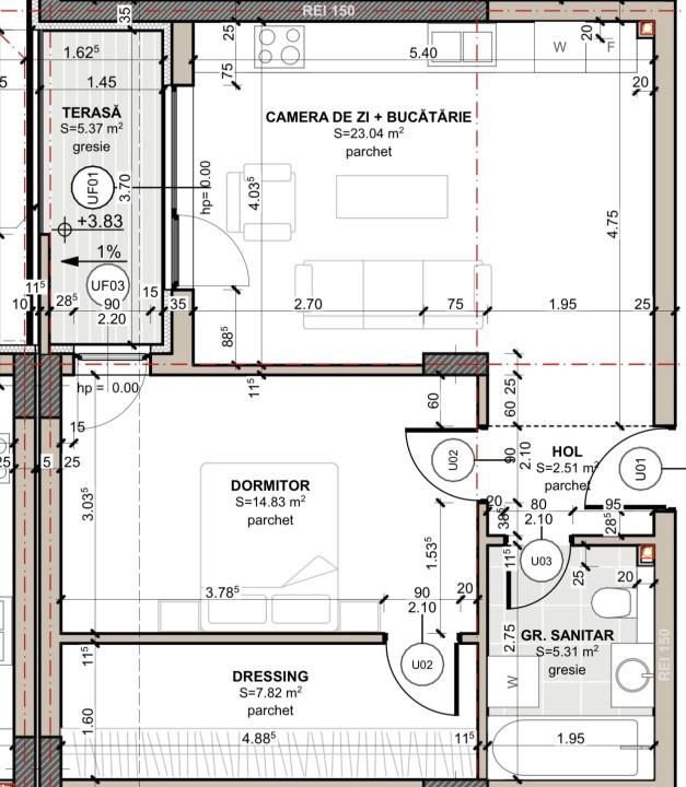
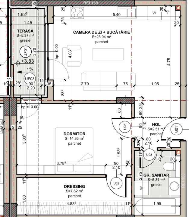
Va propunem spre vanzare apartament de doua camere situat intr-un ansamblu rezidential nou construit in zona Eroilor, Floresti.
Apartamentul dispune de o suprafata utila de 53.41 mp, plus balcon de 5.37 mp, compartimentarea este semidecomandata si se prezinta astfel: hol, living plus bucatarie, dormitor, baie si balcon. Se va preda la stadiul de semifinisat si include: usa la intrare, centrala termica proprie, incalzire in pardoseala, geamuri cu 3 sticle, tamplarie PVC. Separat se poate achizitiona un loc de parcare subteran la pretul de 9000 euro.
Pretul afisat include tva de 21%.
Zona este una foarte accesibila, cu mult spatiu verde, aproape de magazine, farmacii, mijloace de transport in comun, etc
Apartamentul este pretabil atat pentru investitie cat si pentru locuinta!
Pentru mai multe detalii sau stabilirea unei vizionari va rugam sa ne contactati!
ID Extern: P12498