


Vă propunem spre vânzare un teren intravilan în zona Hub Borhanci, lângă piscina acoperită aflată momentan în lucru.
Terenul are o suprafață de 1000 mp utili, cu o panoramă deosebită.
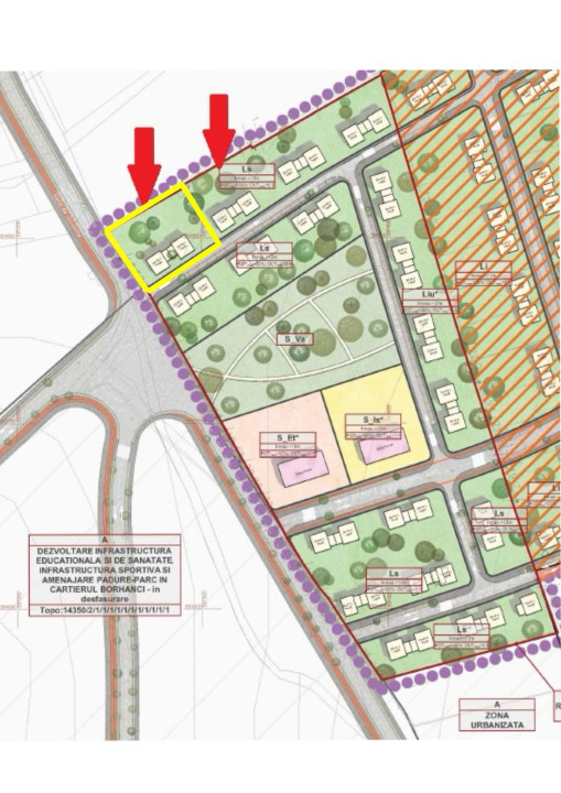
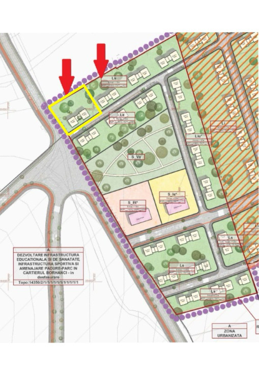
PUZ în derulare.
Se poate accesa terenul din cartierul Soporului, sau din cartierul Borhanci, pe drum pietruit.
Proiectul Bazinului Olimpic din cartierul Borhanci face parte dintr-un proiect mai mare, care includă creșă, grădiniță, școală gimnazială, liceu, o zonă de pădure-parc, bază sportivă și străzile aferente.
Pentru mai multe detalii sau pentru programarea unei vizionări, nu ezitați să ne contactați.
ID:P9113