
Va propunem spre vanzare terenuri pentru duplexuri si case individuale.
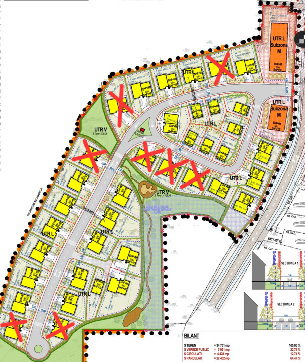
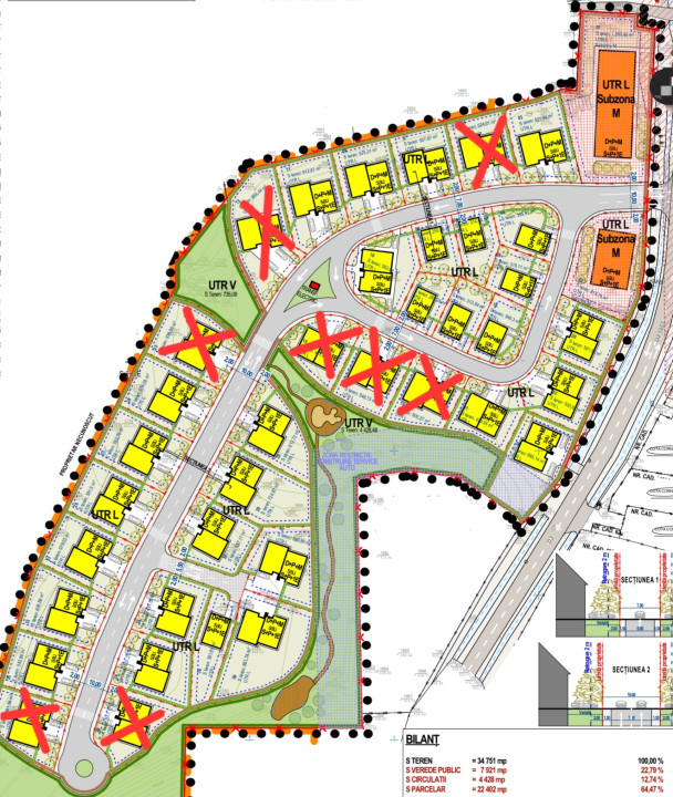
Terenul cu o suprafata de 34.700mp are PUZ aprobat si este parcelat in parcele incepand de la 310mp utili pentru casa indiviauala si minim 500mp pentru duplexuri.
Se ofere asistenta pentru autorizarea parcelelor.
Localizat la intrare in Popesti , terenurile fac parte dintr-un viitor ansamblu de duplexuri si case individuale.
Un proiect cu 68 de unitati locative din care 60 unitati tip duplex si 8 case individuale.
La pretul afisat se adauga TVA pentru persoanele fizice sau taxare inversa pentru firme.
Va asteptam la vizionare.
ID EXTERN : P5195