











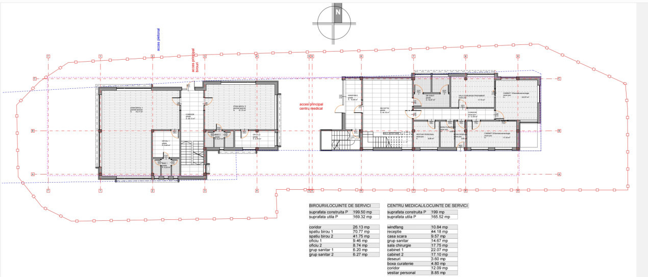
Va propunem spre vanzare un teren in curs de autorizare in cartierul Gruia, Cluj-Napoca.
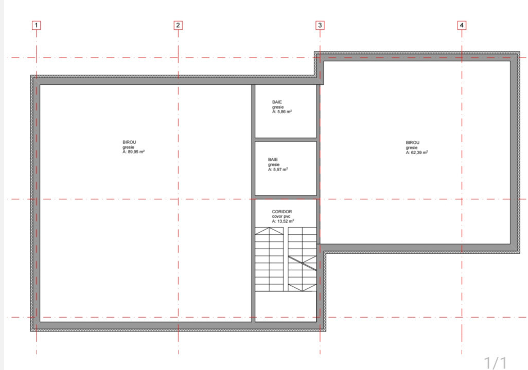
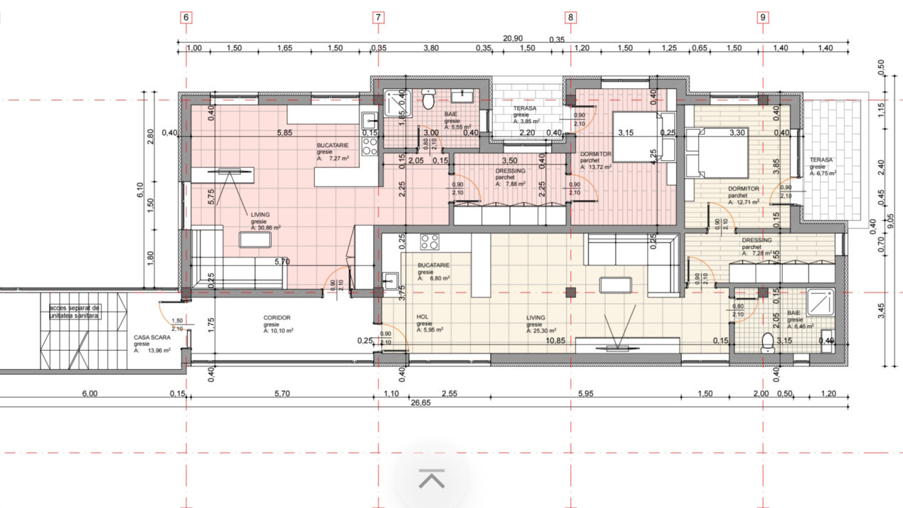
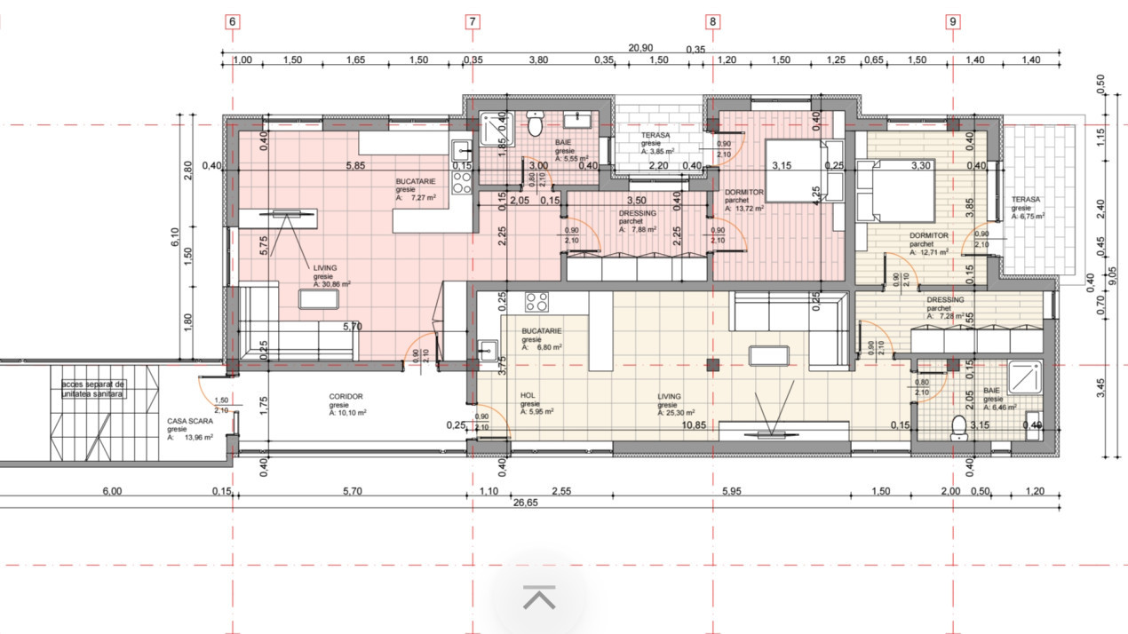
Terenul este pretabil pentru 2 imobile :
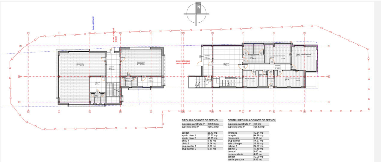
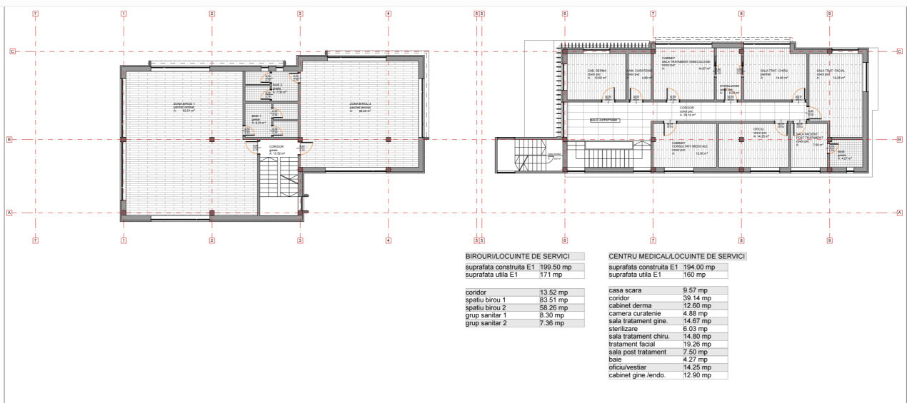
-1 Clinica medicala si 1 Cladire de birouri
-Subsol comun pentru ambele imobile unde sunt prevazute 17 locuri de parcare, 2 spatii tehnice si casa scarii.
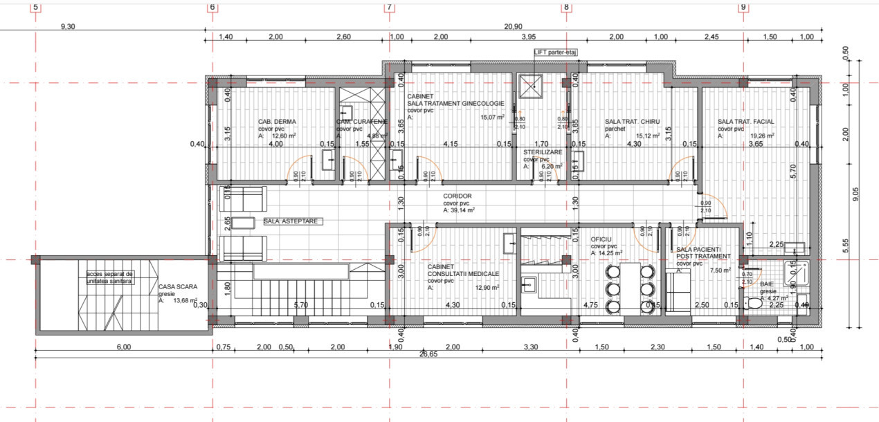
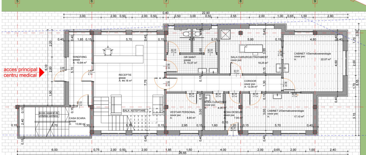
-Parter: 199.5 mp construiti- 169,32 mp utili pentru cladirea de birouri si 199 mp Construiti- 165,52 mp Utili pentru clinica.
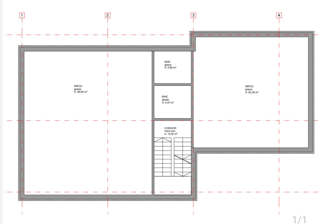
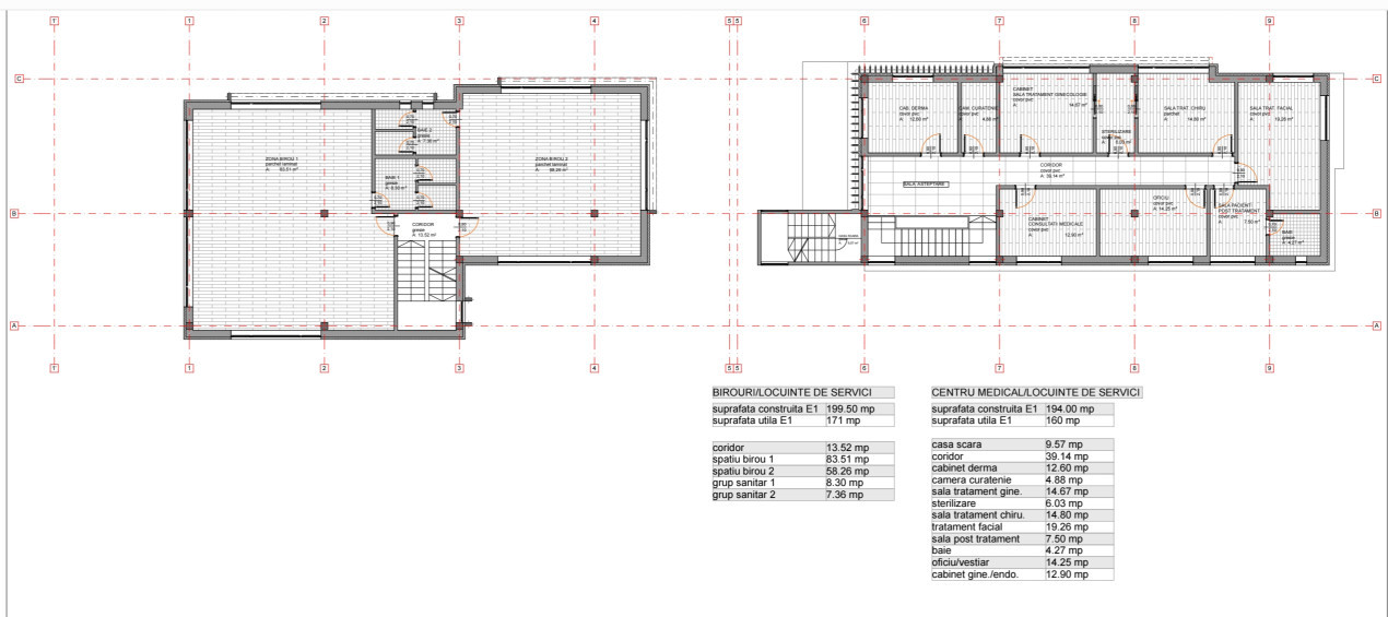
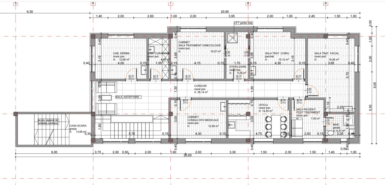
-Etaj 1: 199,5 mp construiti- 171 mp utili pentru birouri si 194 mp construiti-160 mp utili pentru clinica.
-Etaj 2: 87 mp construiti- 67 mp utili pentru birouri si 188 mp construiti- 153,84 mp utili pentru clinica
Va asteptam la vizionare !
P8914