


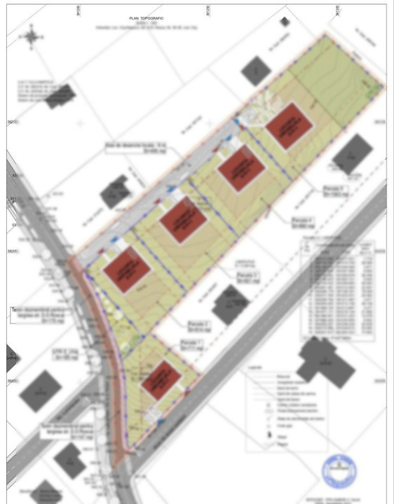
Va propunem spre vanzare un teren superb in Faget cu suprafata de 858mp, parcela pe colt.
Terenul este perfect pentru o casa individuala pentru cineva care vrea liniste si o zona premium.
Terenul beneficiaza de utilitati si se poate autoriza in cel mai scurt timp!
Va asteptam la vizionare pentru mai multe detalii!
P12861