



Teren cu autorizație de construire pentru 4 duplexuri (8 unități locative) – Chinteni, Cluj, 2700 mp
Se oferă spre vânzare un teren intravilan în suprafață de 2700 mp, situat în Chinteni, zonă aflată în continuă dezvoltare rezidențială. Proprietatea dispune de autorizație de construire pentru 4 duplexuri (8 unități locative), ceea ce o transformă într-o oportunitate excelentă pentru investitori și dezvoltatori imobiliari interesați de un proiect imediat executabil.
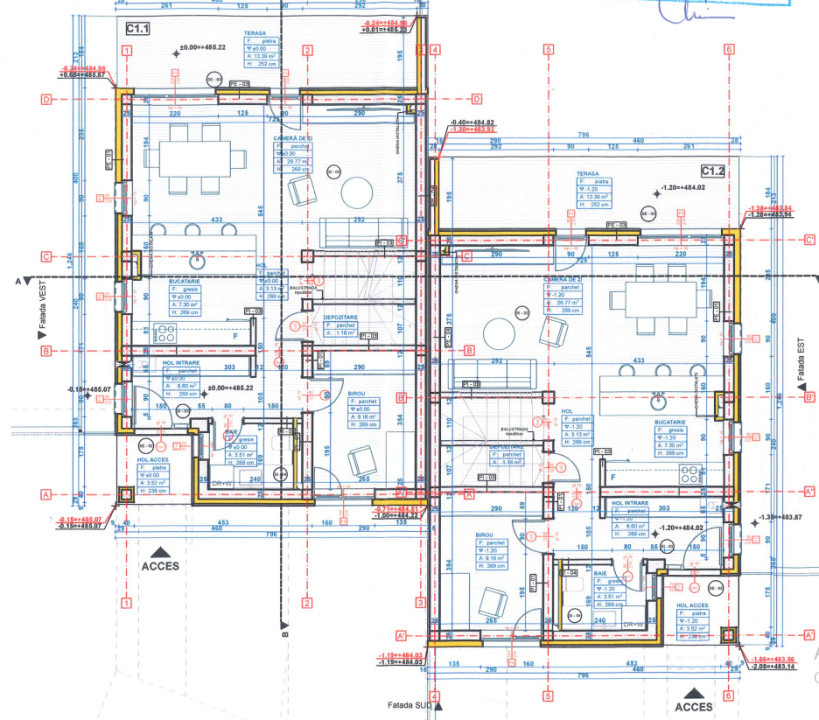
Detalii teren și proiect:
Suprafață totală teren: 2700 mp
Suprafață teren aferentă fiecărei unități locative: aprox. 350 mp
Suprafață construită la sol / unitate: 99 mp
Parcelare flexibilă: terenul se poate vinde și individual, în loturi de aprox. 700 mp (pentru fiecare duplex), fiecare cu cotă parte din drumurile interioare
Utilități la parcelă: apă, gaz, curent
Acces: strada este inclusă în programul de asfaltare, ceea ce adaugă valoare și confort pentru viitorii locatari
Avantaje majore
Proiect autorizat – construcția poate începe imediat, fără întârzieri pentru obținerea documentațiilor
Flexibilitate la achiziție – se poate cumpăra integral sau parcelat, în funcție de planul de investiții
Zonă în plină expansiune – Chinteni este căutat de familiile tinere care vor locuințe moderne aproape de Cluj, într-un mediu liniștit
Investiție sigură și profitabilă – cererea ridicată pentru unități locative în proximitatea Clujului garantează un randament atractiv
90.000 € / parcelă (2 unități locative) + TVA
Oportunitate excelentă pentru dezvoltatori imobiliari sau investitori care caută un proiect autorizat, cu toate actele pregătite pentru demararea construcției într-o zonă cu potențial ridicat.
ID EXTERN: P11100