





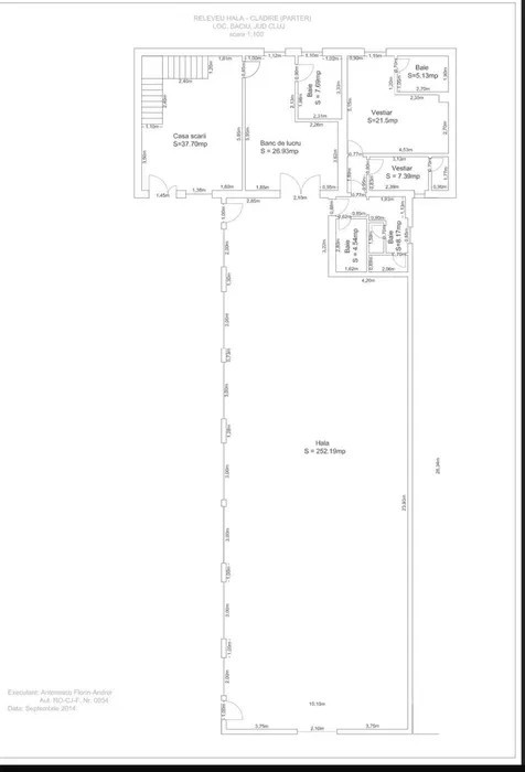
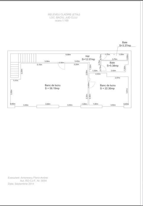
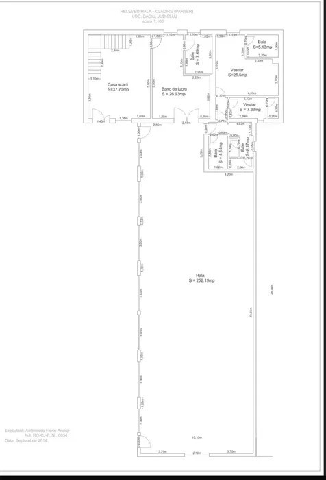
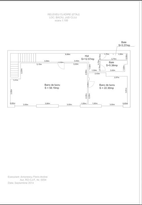
Bling imobiliare propune spre inchiriere hala in Cluj, zona Baciu
- suprafata totala 270 mp
- hala are 80 mp birouri (optional - 400 euro )
- apa, curent 250 kwp instalati, gaz, internet
- sistem de incalzire cu suflante si centrala termica
Inaltime 4.5 m
- acces tir
- pretabila pt depozitare, productie, spalatorie de haine, loc de joaca pt copii
Activitate cu consum mare de curent electric
Disponibil de la 1 martie 2025. Pentru vizionare si mai multe detalii nu ezitati sa ne contactati . ID extern p8323