

Vă propunem spre vânzare o hală industrială modernă, nou construita, situată în zona industrială a localității Jucu, ideală pentru investitie, activități logistice, producție sau depozitare.
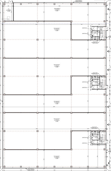
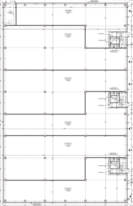
Hala dispune de o suprafata totala de 3200 mp cu inaltime de 5,55 m si este compartimentata astfel:
- 6 module independente in zona de hala (2700 mp in total) fiecare cu rampa proprie
- 500 mp spatiu destinat birourilor la etaj (zone administrative, vestiare, grupuri sanitare)
Ca si utilitati dispune de curent trifazic, apa curenta si canalizare, sistem de incalzire.
Hala este pozitionata intr-o zona industriala, acces facil cu tirul.
Ideala pentru investitie întrucât se poate inchiria fiecare modul individual.
Pentru mai multe informatii sau stabilirea unei vizionari va rugam sa ne contactati.
ID Extern: P10299