









BLING Imobiliare vă oferă spre închiriere un spațiu autorizat pentru alimentație publică, ideal pentru restaurant, bistro, cafenea, pub sau activități de catering & delivery.
Situat în zona Pieței 1 Mai, cartierul Mărăști, spațiul beneficiază de o poziție excelentă, cu acces facil atât către centrul orașului, cât și către cartierele învecinate.
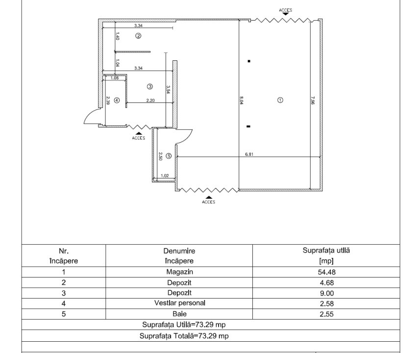
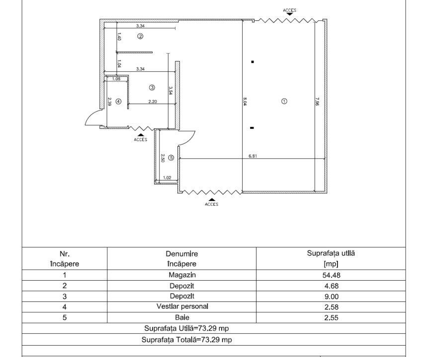
Suprafața utilă: 74 mp
Terasă: aproximativ 80 mp
Dotări:
- curent trifazic
- posibilitatea achiziționării echipamentelor existente
Spațiul se închiriază gol, oferind libertatea de a fi amenajat conform conceptului viitorului chiriaș.
Atasat regasiti schița spațiului.
O oportunitate excelentă pentru dezvoltarea unei afaceri de succes într-o zonă cu vad.
ID: P11174