Bling Imobiliare utilizează fişiere de tip cookie pentru a personaliza și îmbunătăți experiența ta pe Website-ul nostru. Înainte de a continua navigarea pe Website-ul nostru te rugăm să aloci timpul necesar pentru a citi și înțelege conținutul Politicii de Cookie. Prin continuarea navigării pe Website-ul nostru confirmi acceptarea utilizării fişierelor de tip cookie conform Politicii de Cookie.
Acest anunt nu mai este activ !

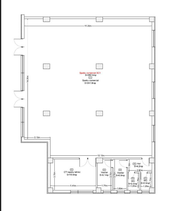
Spatii comerciale, 2 spatii, 256mp utili, Cluj-Napoca

Cluj-Napoca

680.000€ + TVA
ID: P8095 194 vandut
  • Nr. camere:6
  • S. utila:256.00 mp
  • S. vitrina:14.00 m
  • Comp.:Compartimentat
  • Nr. bai:2
  • Tip imobil:Bloc
  • Regim inaltime:D+P+5

Va propunem spre vanzare 2 spatii comerciale cu o suprafata totala de 256mp utili, finisate si cu preluare de chiriasi.

Spatiul este situat in zona Taietura Turcului/Fabrica de sport.

Va ASteptam la vizionare ! id extern : P8095

Utilitati
  • Utilitati generale: Curent, Apa, Canalizare, Gaz, Curent trifazic
  • Sistem incalzire: Centrala proprie
Finisaje
  • Izolatii: Exterior
  • Pereti: Vopsea lavabila
  • Stare: Finisat
  • Ferestre: PVC, Termopan
Dotari
  • Contorizare: Apometre, Contor gaz
  • Mobilat: Complet

Traian Hiruta

Master Broker acreditat
  • 0364808888

Contacteaza-ma

Traian Hiruta

0364808888