







BLING Imobiliare vă propune spre închiriere un spațiu comercial situat în zona Podului IRA.
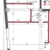
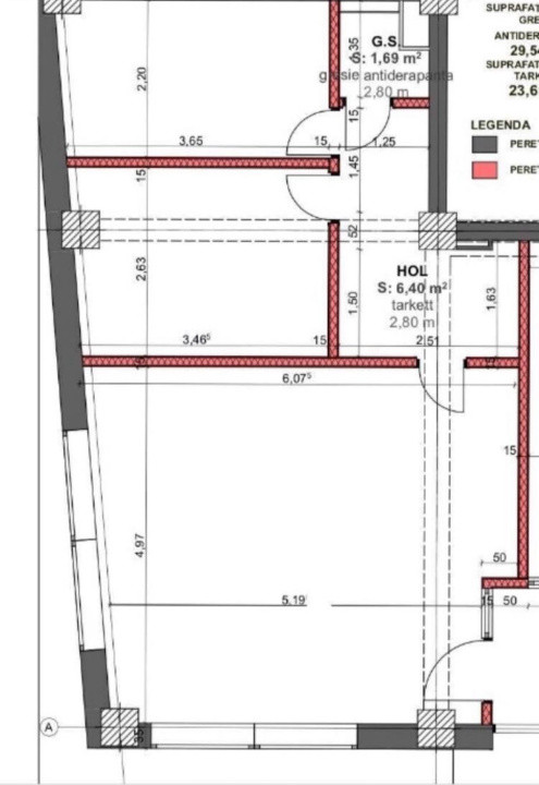
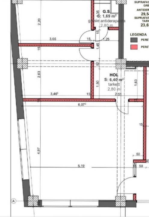
Suprafața utilă este de 55 mp și este compartimentat în 3 încăperi, hol și grup sanitar. La nevoie se poate opta pentru cel de al doilea grup sanitar.
Este situat la parterul unui imobil nou construit, prevăzut cu 5 etaje, cu acces direct din stradă.
Zona este intens circulată, iar în fața blocului se află stația de autobuz pentru liniile 5, 8, M43.
Pretabil pentru salon, cabinet medical, birou, showroom etc.
Există posibilitate de parcare chiar în fața spațiului, locurile fiind la liber.
Disponibil de la 1 ianuarie 2026.
Vă așteptăm la vizionare!
ID: P11710