









BLING Imobiliare vă propune spre închiriere un spațiu comercial situat în zona Calea Florești, una dintre cele mai circulate și vizibile artere ale orașului, cu vad comercial excelent.
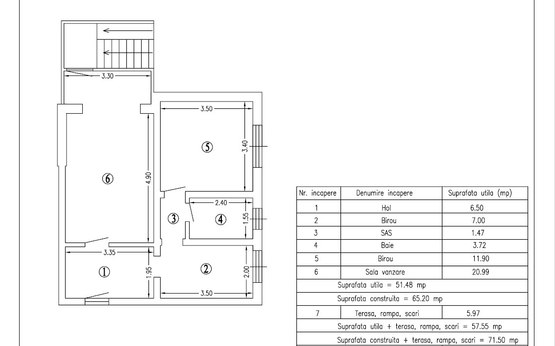
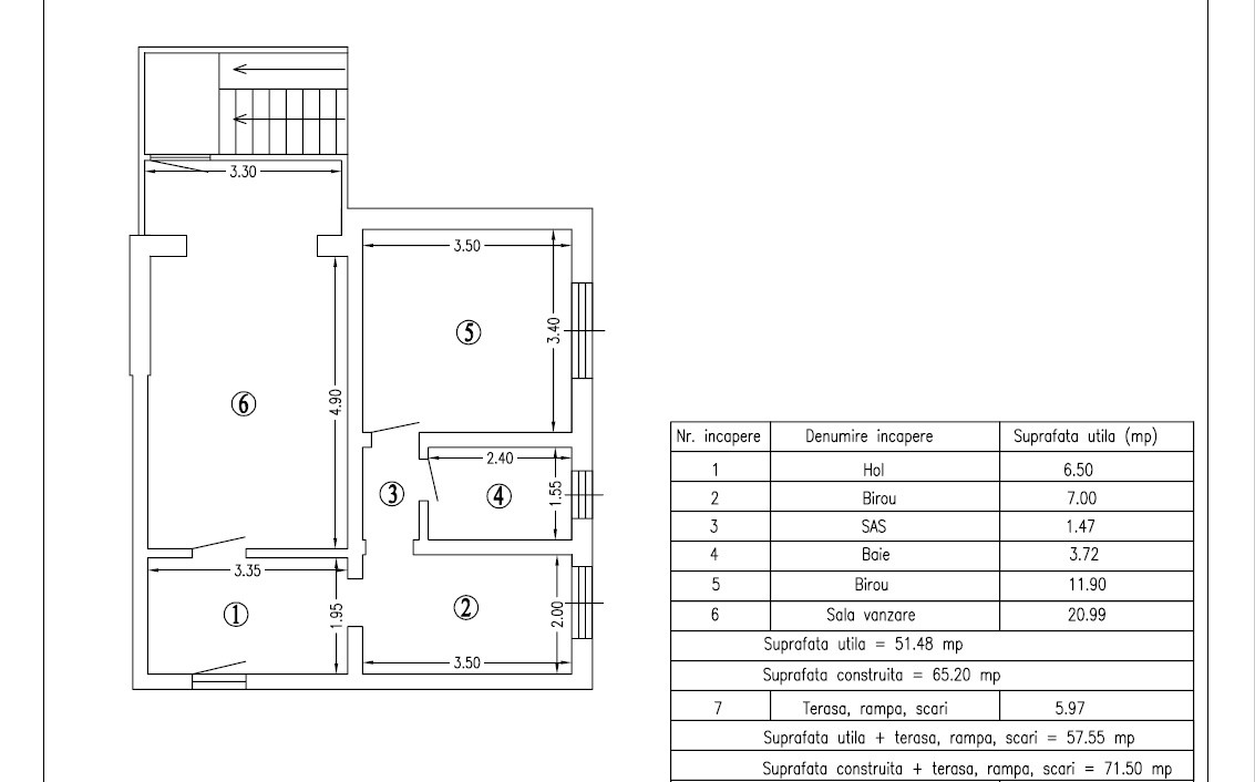
Spațiul are o suprafață utilă de 51 mp și este compartimentat eficient în 3 încăperi, hol, baie și vestiar, oferind flexibilitate pentru diverse tipuri de activități. Spațiul dispune de acces auto facil, precum și de locuri de parcare în proximitate, un avantaj important atât pentru clienți, cât și pentru angajați.
Destinația în Cartea Funciară este de spațiu comercial, ceea ce permite desfășurarea unei game variate de activități. Viitorii chiriași pot obține, în funcție de specificul activității, adeverințe de la urbanism pentru servicii cu acces public (de exemplu, salon de înfrumusețare), birouri, alimentație publică sau alte funcțiuni mixte, în conformitate cu reglementările zonei.
Spațiul beneficiază de intrare proprie și cale de acces dedicată, incalzirea se face cu ajutorul centralei termice proprii si calorifere. Costurile aferente abonamentului pentru calea de acces, precum și toate utilitățile, vor fi suportate de chiriaș.
O oportunitate ideală pentru dezvoltarea unei afaceri într-o zonă cu potențial ridicat!
Vă așteptăm la vizionare!
ID: P13775