
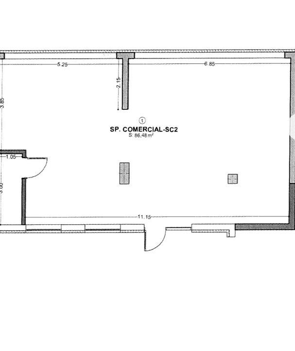
Va propunem spre vanzare un spatiu comercial (open space),cu suprafata utila de 90 mp.Acesta se preteaza pentru diverse activitati:birouri,cabinet notarial, cabinet avocatura,salon de infrumusetare etc.sau se poate schimba destinatia in spatiu de locuit si se poate amenaja un apartament pe 2 nivele (spatiul are o inaltime de 5 m).Este un spatiu luminos,cu geamuri mari,alarma,camera de supraveghere,incalzire in pardoseala si se afla la 5 minute de Piata M Viteazul..Optional,se poate achizitiona 1 loc de parcare la pretul de 8000 euro.L achizitionare se emite factura cu taxare inversa si se poate vinde cu preluare de chiriasi .
Pentr a programa o vizionare,va invitam sa ne contactati. Id extern P8228