





Vă oferim spre închiriere un spațiu comercial situat într-un ansamblu exclusivist, in cartierul Gheorgheni, pe Strada Soporului.
Detalii proprietate:
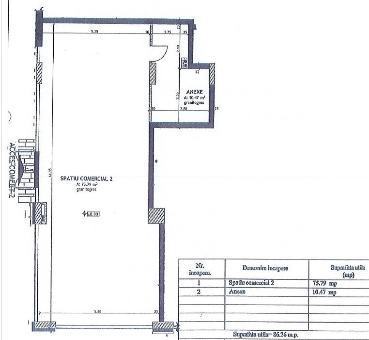
Suprafață utilă: 86 mp
Două fațade vitrate, care asigură o vizibilitate excelentă
Design open-space pentru zona de vânzare, completată de anexe
Toate utilitățile necesare, incluzând centrală termică individuală și încălzire în pardoseală
Contorizare separată pentru fiecare utilitate
Spațiul este disponibil imediat și este ideal pentru diverse tipuri de activități comerciale.
Chirie lunară: 2.000 EUR + TVA
Pentru mai multe informații și vizionări, contactați-ne! ID extern: P8563