
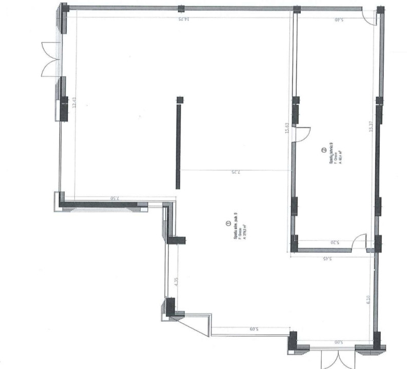
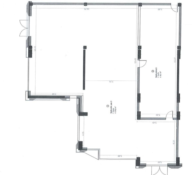
BLING Imobiliare vă oferă spre închiriere un spațiu autorizat pentru alimentație publică, cu VAD dispus pe 2 niveluri parter si mezanin, ideal pentru restaurant, cafenea, loc de joaca pentru copii, activități de catering & delivery.
Situat în zona Iulius Mall, spațiul beneficiază de o poziție excelentă, cu acces facil.
Suprafața utilă este de 278mp, din care 80mp spatiu tehnic, situat la parter si mezanin.
Spațiul se închiriază gol, oferind libertatea de a fi amenajat conform conceptului viitorului chirias.
O oportunitate excelentă pentru dezvoltarea unei afaceri de succes într-o zonă cu potential.
ID PROPRIETATE: P11587