







BLING Imobiliare vă propune spre închiriere un spațiu comercial finisat, situat în imediata apropiere a Podului IRA.
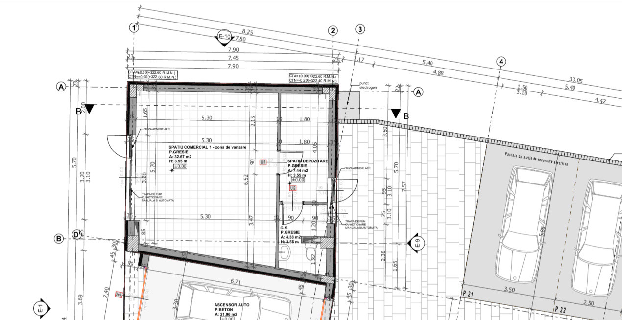
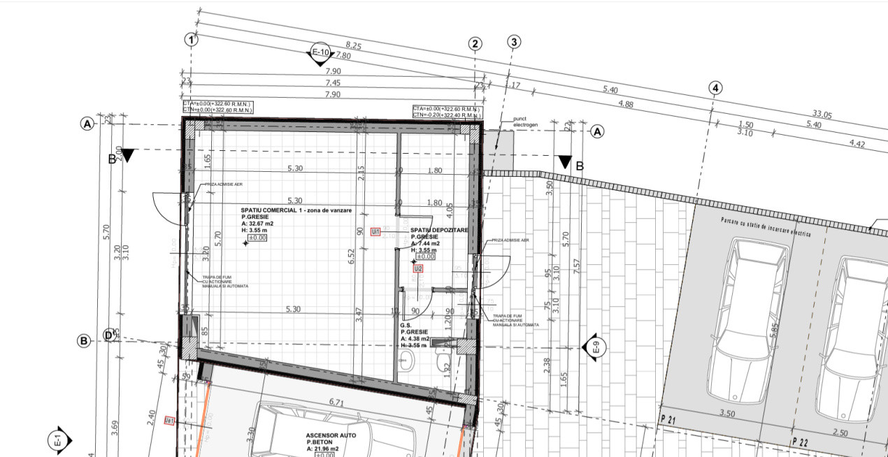
Spațiul comercial are o suprafață utilă de 44,49 mp, iar compartimentarea este structurată astfel: 1 cameră open-space cu o suprafață de 32,67 mp, 1 grup sanitar, 1 cameră de depozitare, după cum reiese din schița atașată.
Se predă la stadiul de finisat precum reiese din fotografii.
Blocul este construit la cele mai înalte standarde, siguranța fiind pusă pe primul loc, așadar s-au efectuat teste pentru alarma de incediu, trapa fum automata, test lift auto.
S-au fololsit materiale premium precum beton celular, usă apartament: 38 dB, cărămidă și vată bazaltică (între apartamente) cu indice de izolare acustică (Rw): 52 dB, iar liftul auto are o greutate maximă de 3000 kg.
Zona este una accesibilă, fiind aproape de toate punctele de interes: 200 m până la stația de autobuz (aproximativ 3 minute în plimbare), 500 m până la magazinele comerciale (Lidl, Kaufland, Leroy Merlin, Pepco) aproximativ 6 minute în plimbare, 3 km până la Iulius Mall (aproximativ 7 minute cu mașina), 4,5 km până la aeroport (aproximativ 10 minute cu mașina).
La prețul afișat (12 euro/mp) se adaugă TVA.
Disponibil din 1 Ianuarie 2026.
Vă așteptăm la vizionare!
ID: P10309