

BLING Imobiliare vă propune spre închiriere un spațiu versatil, ideal pentru activități precum after school, sediu de firmă, birouri, ateliere sau galerii de artă.
Imobilul este situat în zona Regionalei CFR, o locație centrală, cu trafic intens atât pietonal, cât și auto, oferind vizibilitate și acces facil.
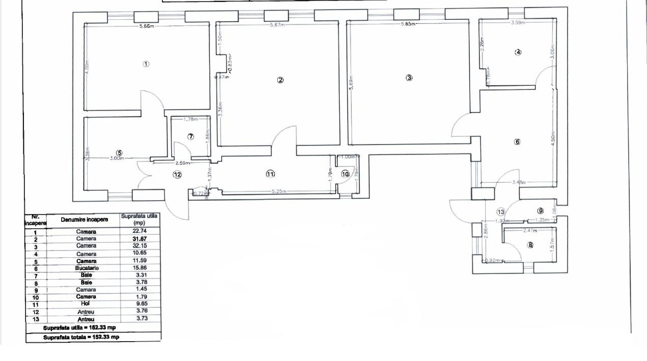
Spațiul dispune de o suprafață utilă de 152,33 mp și este compartimentat eficient în 7 camere separate, 2 băi, 1 bucătărie, 2 spații de depozitare și 3 antreuri, ceea ce permite organizarea optimă a activităților în funcție de necesități.
Este amplasat la parterul unei case/vile, cu acces din curtea interioară, beneficiind totodată de geamuri orientate spre stradă. Clădirea este poziționată la front stradal, iar în curte există o parcare privată cu barieră (cu plată pe ora sau abonament lunar), având o capacitate generoasă de 34 de locuri – un avantaj important pentru angajați și clienți.
Proprietatea este racordată la toate utilitățile necesare (apă, gaz, curent, canalizare), iar încălzirea se realizează prin centrală termică proprie, cu calorifere.
Spațiul se află în curs de renovare totală și va fi predat la stadiul de semifinisat, cu șapă autonivelantă și pereți gletuiți, oferind astfel viitorului chiriaș posibilitatea de a-l amenaja și personaliza în funcție de specificul activității desfășurate.
În prezent, imobilul are destinație locativă în acte, însă proprietarii sunt deschiși la schimbarea destinației în spațiu comercial, în funcție de activitatea viitorului chiriaș.
O alegere excelentă pentru cei care își doresc un spațiu adaptabil, într-o zonă centrală, cu acces facil și multiple posibilități de utilizare.
Vă așteptăm la vizionare!
ID: P13825