










Va propunem spre vanzare casa individuala cu suprafata utila de 103 mp situata in zona Sub Cetate. Suprafata terenului este de 350 mp.
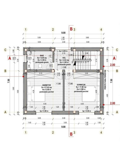
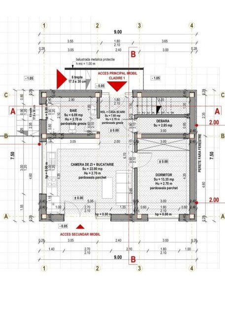
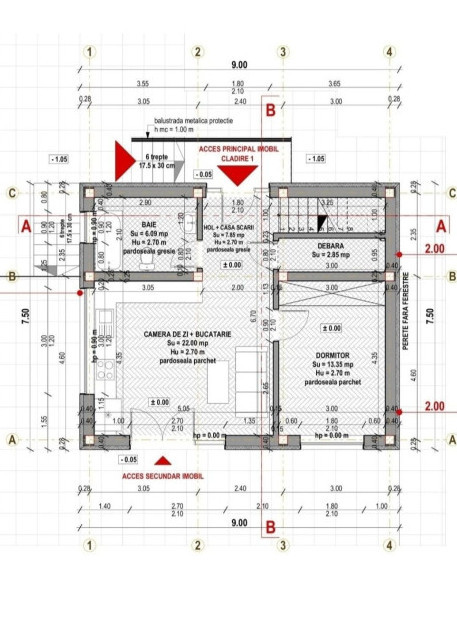
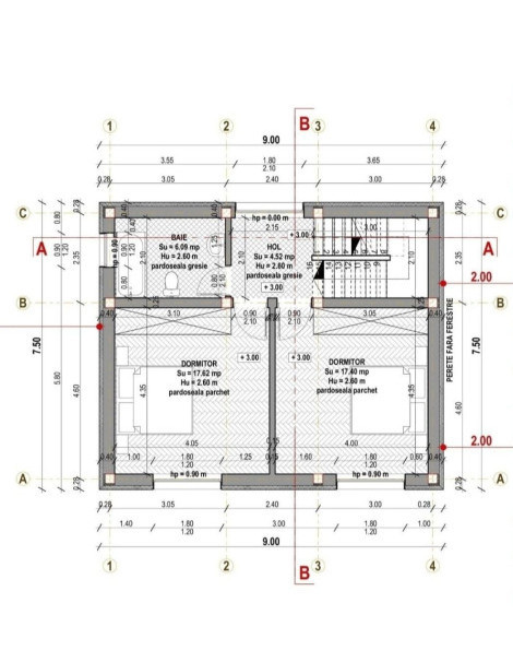
Regimul de inaltime este P+1 + terasa circulabila. Se prezinta astfel:
-parter: hol, baie, living+bucatarie open-space, debara, 1 dormitor.
-la etaj: hol, baie, 3 dormitoare + terasa circulabila cu suprafata de 35 mp.
Se vinde la stadiul de semifinisat in interior avand i geamuri tripan.
La exterior casa se preda la roșu și mai necesită câteva lucruri de făcut la grădină!
Investita maxima de 20000 euro și casa e gata pentru predare
Pentru mai multe detalii, nu ezitati sa ne contactati! ID Extern 5366