





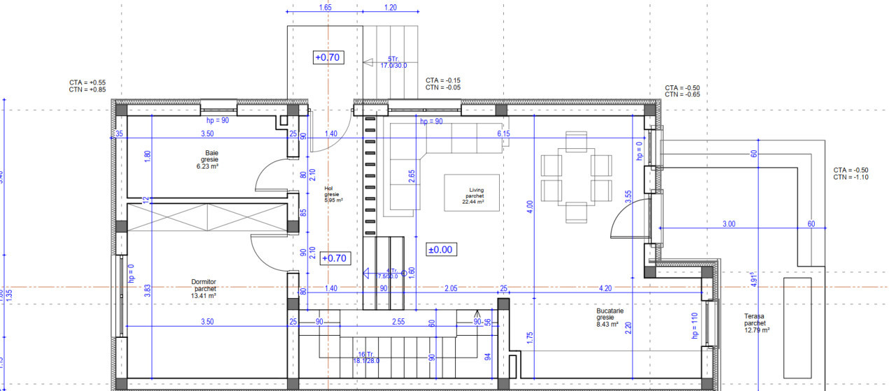
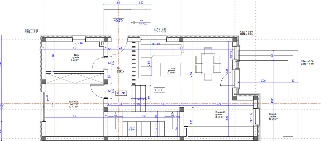
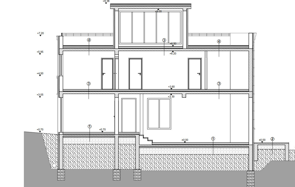
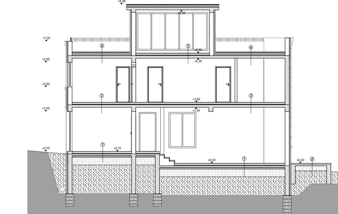
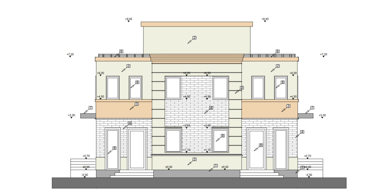
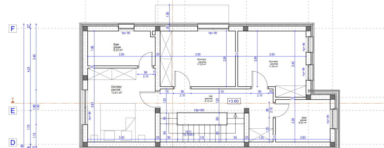
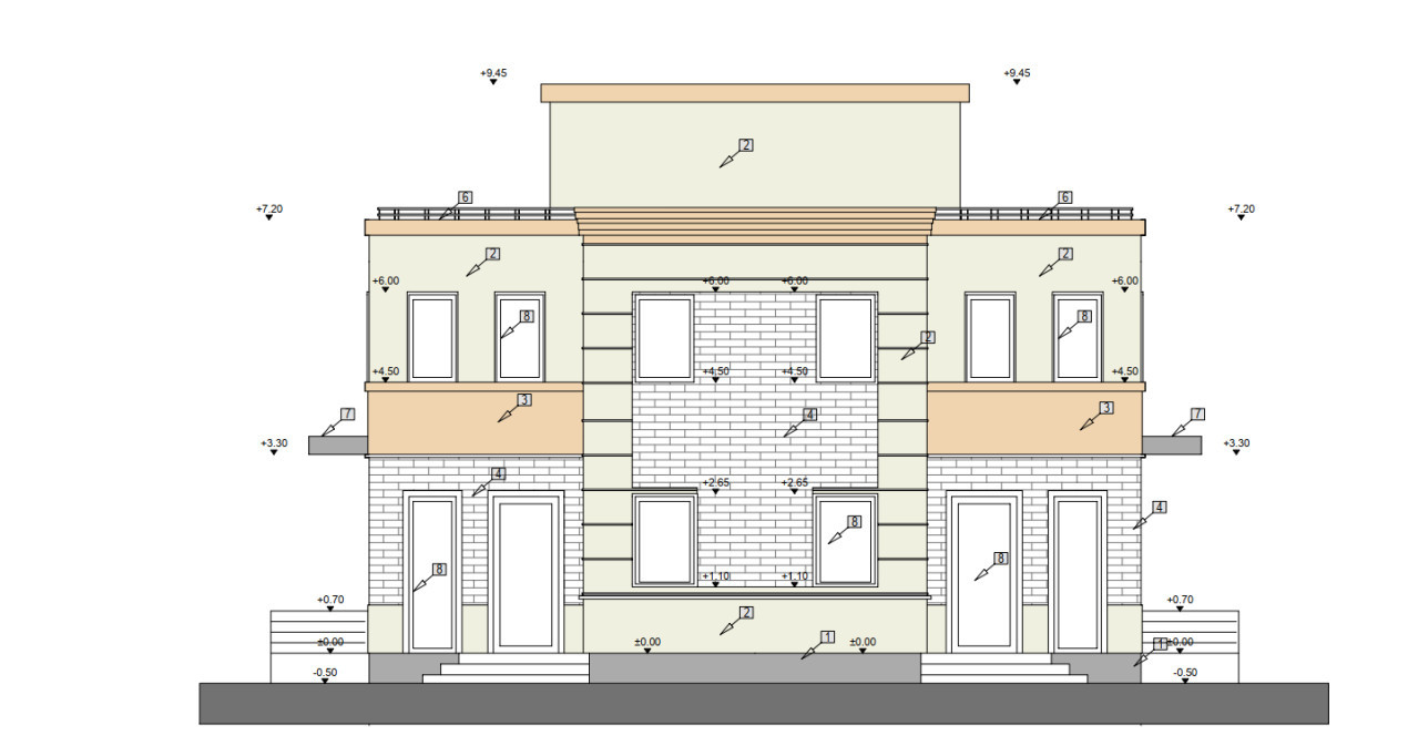
Va propunem spre vanzare casa de tip duplex de 5 camere,120 mp utili, 130 mp gradina, Zona Tauti. Compartimentarea se prezinta astfel: la parter avem un dormitor , baie cu geam livingul open space cu bucataria, de unde avem o iesire spre terasa. La etaj avem 3 dormitoare 2 bai,iar la nivelul 3 avem o zona acoperita inchisa cu perete de sticla si o terasa circulabila pe toata suprafata. Pentru mai multe detalii, nu ezitati sa ne contactati! Id extern: P7480