

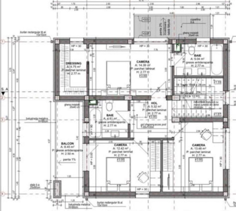
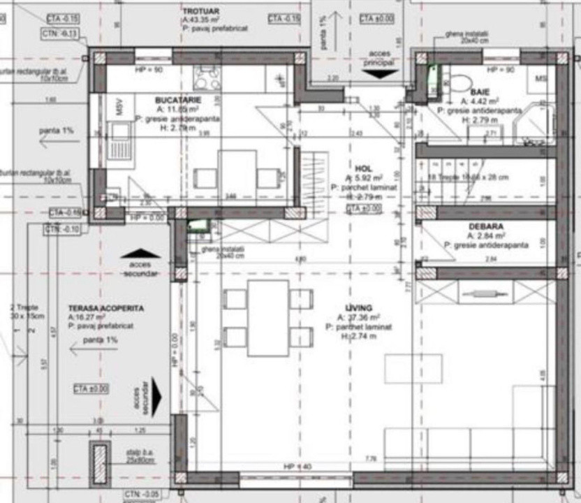
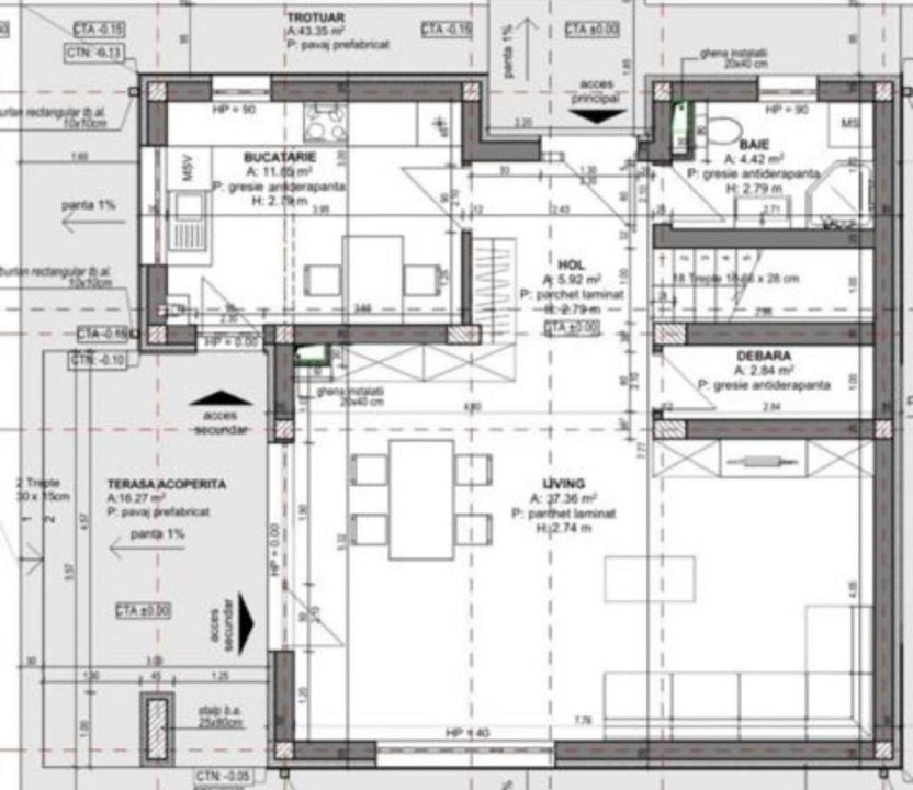
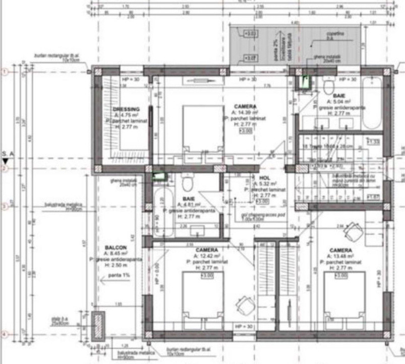
Va propunem spre vanzare o casa individuala semifinisata in Luna de Sus. Casa are suprafata utila de 130 mp si este dispusa astfel: la parter avem un living, bucatarie din care se face iesirea in curtea din spate, o baie si un spatiu de depozitare iar la etaj avem trei dormitoare (unul dintre acestea cu baie proprie si dressing), 2 bai si un balcon de 4 mp iar pe intreaga suprafata a imobilului avem o terasa de 65 mp. Proprietatea dispune de un teren in suprafata de 400 mp, se preda la stadiu de semifinisat cu incalzire in pardoseala, centrala termica pe gaz, geamuri termopan. Pentru mai multe detalii sau pentru stabilirea unei vizionari nu ezitati sa ne contactati! ID extern: P10481