




























BLING Imobiliare vă propune spre închiriere o casă individuală, situată în zona Eugen Ionesco, cartier Europa.
Imobilul este dispus pe 3 niveluri (demisol, parter și etaj 1) și are o suprafață utilă de aproximativ 400 mp, fiind amplasat pe un teren de 1300 mp.
Compartimentarea este următoarea:
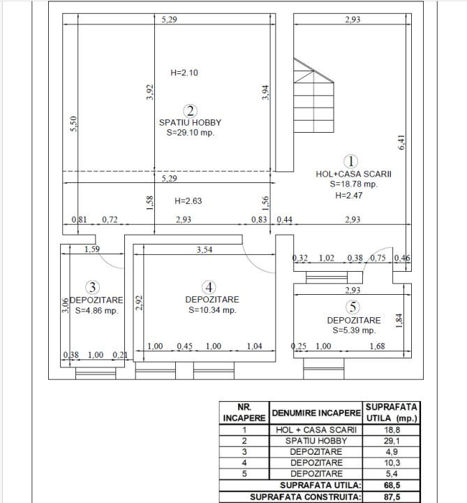
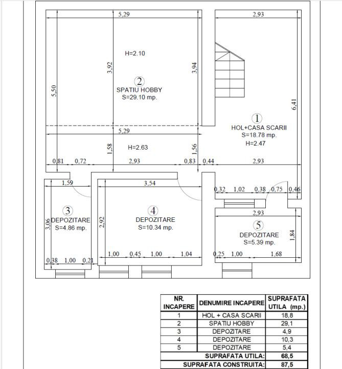
Demisol: spațiu open space, cameră tehnică (centrală), o încăpere separată și cameră servere
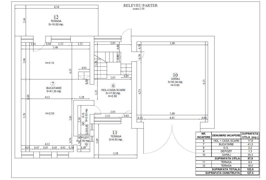
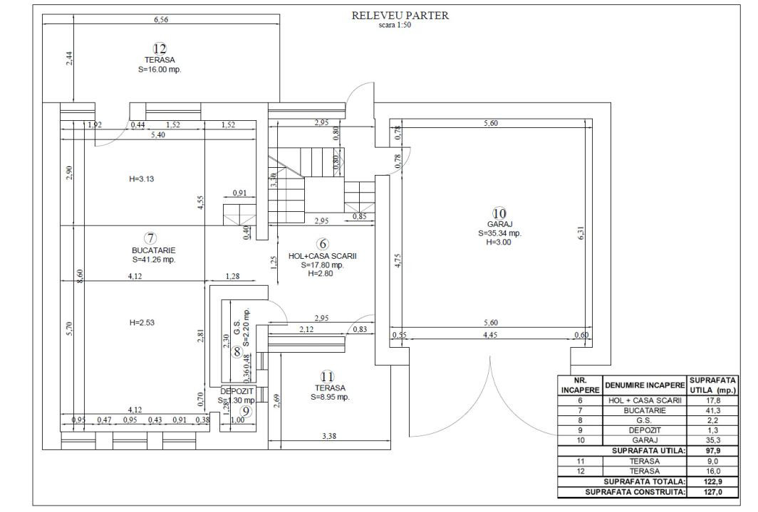
Parter: open space luminos, hol, baie și garaj
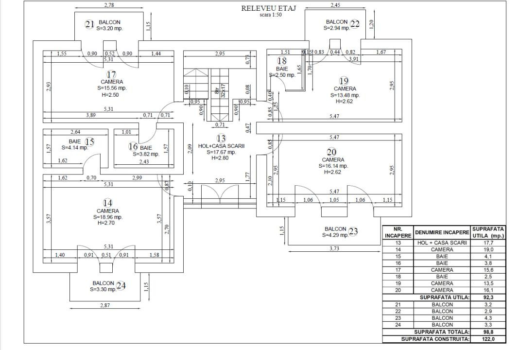
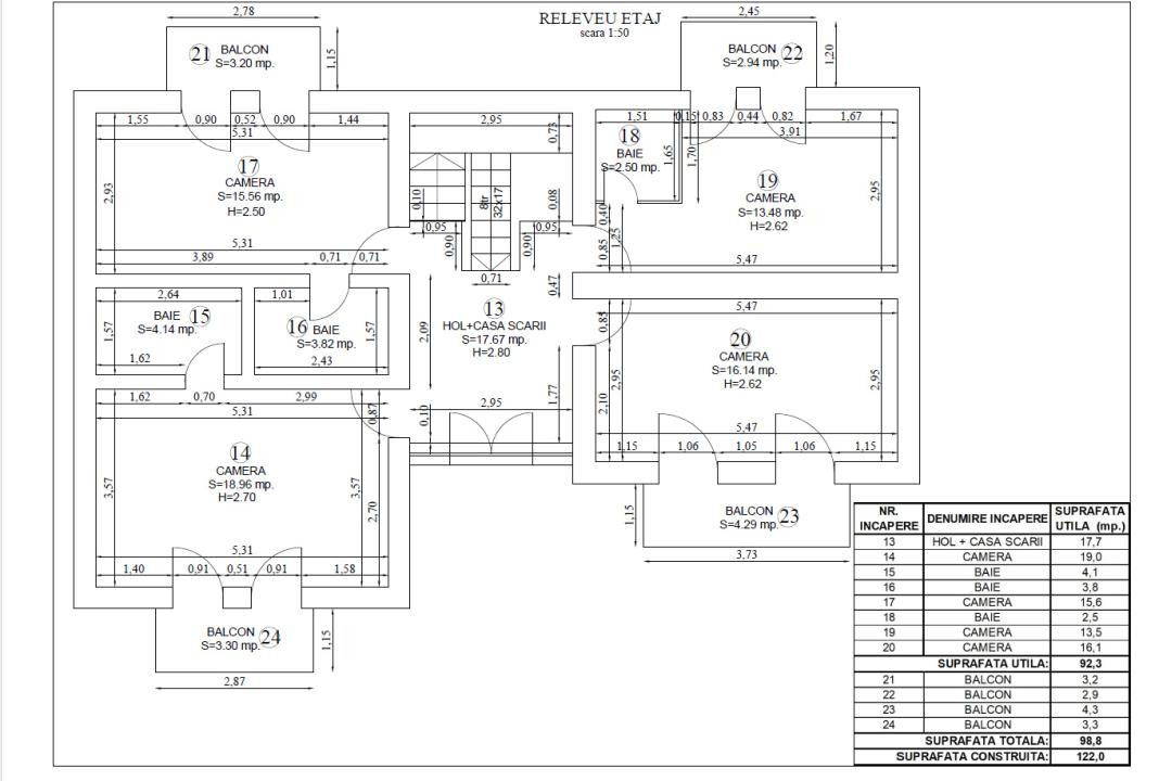
Etaj: 4 camere, 3 băi și hol.
În plus, proprietatea dispune de 6 terase cu o suprafață totală de aproximativ 50 mp, ideale pentru zone de relaxare.
Casa se închiriază nemobilată, dar proprietarii se vor ocupa de partea de renovare pentru finisaje.
Terenul are o suprafață de 1300 mp și este complet împrejmuit și amenajat cu arbori ornamentali, oferind un cadru plăcut și intim, perfect pentru desfășurarea activităților profesionale într-un mediu liniștit.
Vă așteptăm la vizionare!
ID: P13900