



Va propunem spre vanzare un duplex, constructie noua 2025,într-un ansamblu privat de 4 duplexuri un concept unic cu parc privat in proprietate intr-o zonă liniștită, aproape de natură.
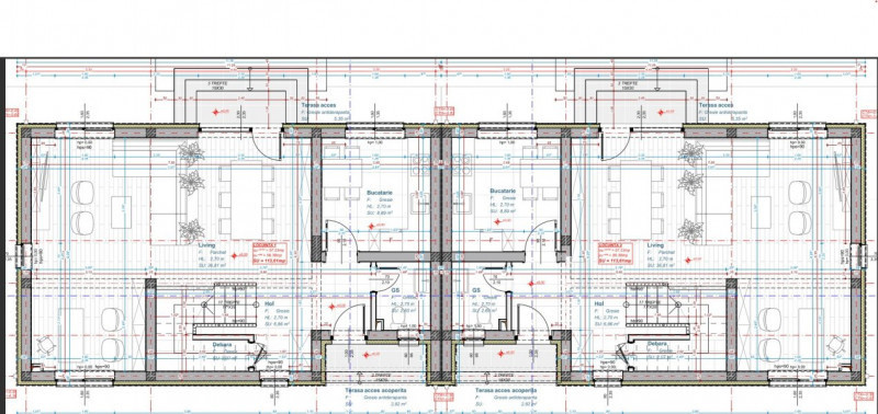
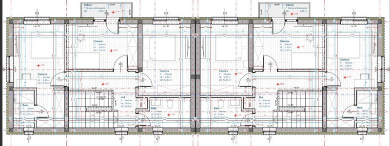
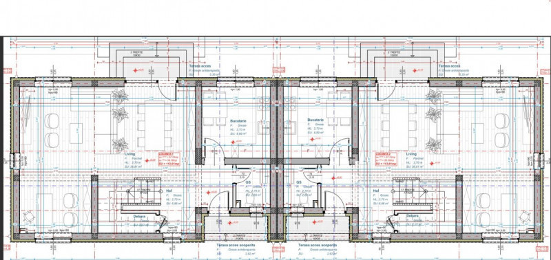
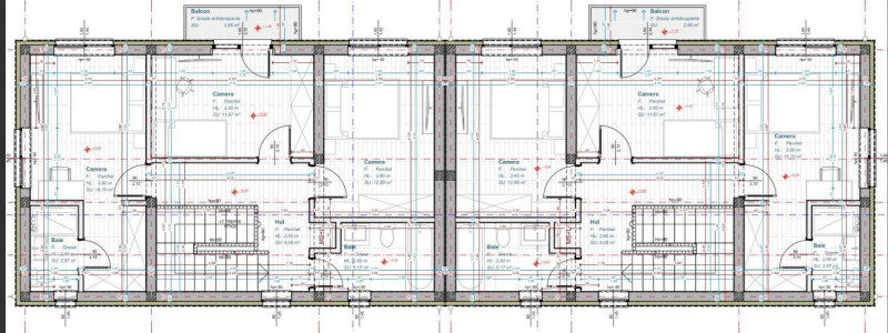
Compartimentare:Parter: living cu dining, bucătărie separată, baie.Etaj: 3 camere, 2 băi, hol, balcon .Suprafețe:Utilă: 118 mp.Teren: 171 mp.Cotă parte pădure: in continuarea ansamblului – parc privat de recreere cu acces doar din ansamblu.Pentru mai multe detalii sau programarea unei vizionari nu ezitati sa ne contactati! ID extern: P12543