



Bling Imobiliare oferă spre vânzare 2 unități de duplex situat în zona Fagului, într-o zonă liniștită și aerisită, ideală pentru familii care își doresc confort și spațiu.
🏡 Detalii generale:
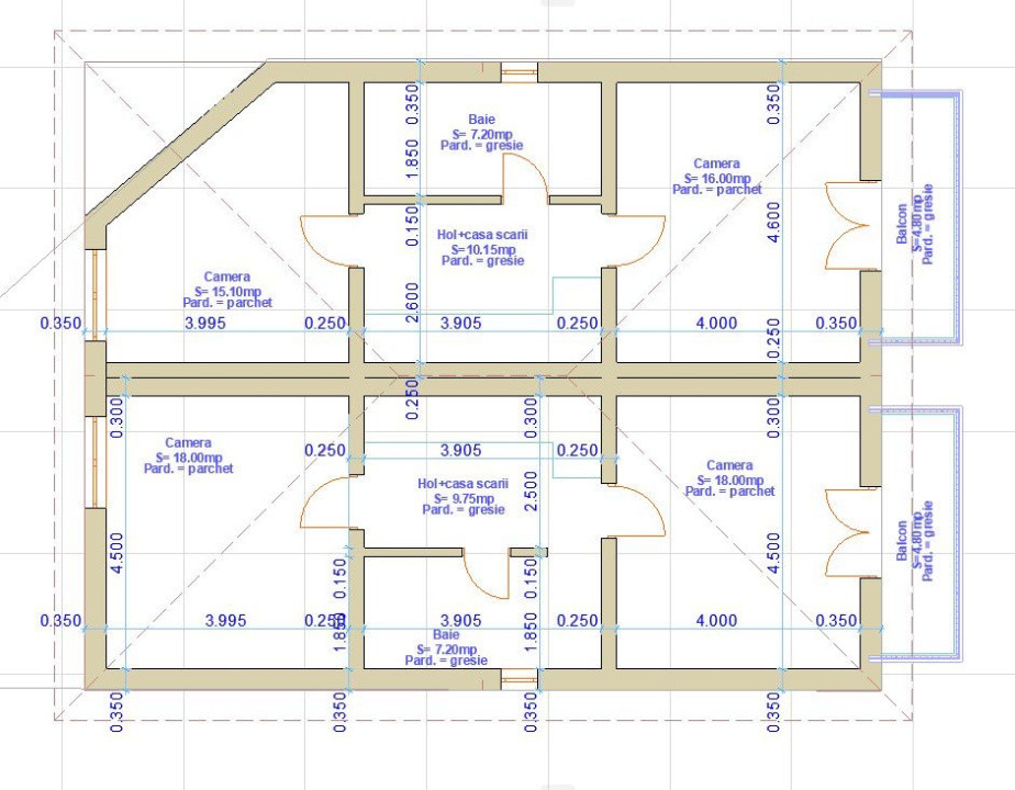
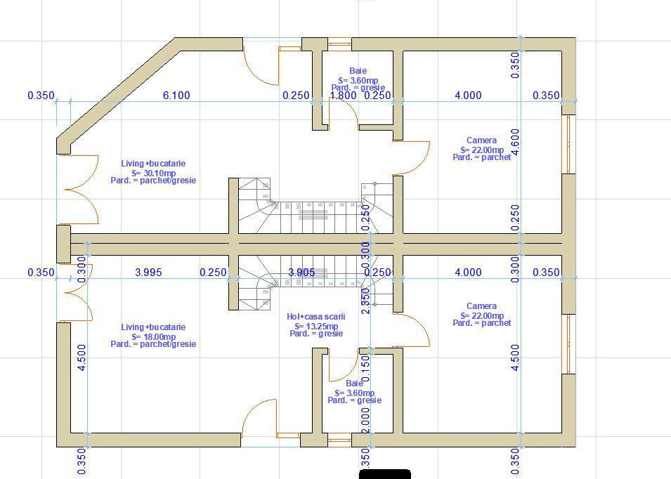
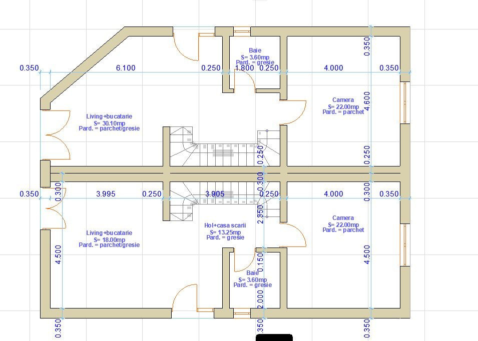
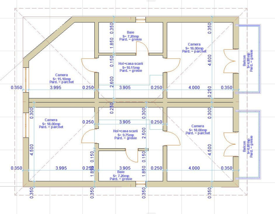
Suprafață utilă: 120 mp
💶 Preț: 180.000 € (TVA inclus)
📅 Finalizare: iunie–iulie 2026
Compartimentare:
• Living spațios cu bucătărie open-space,
• 3 dormitoare luminoase,
• 2 băi,
• Balcon,
• Pod pentru depozitare.
Dotări și finisaje:
• Încălzire în pardoseală,
• Geamuri tripan pentru izolație superioară,
• Țiglă ceramică de calitate,
• Construcție modernă în zonă liniștită din Florești.
Pentru detalii suplimentare sau vizionări, nu ezitați să mă contactați! ID Extern: P12205