

















Va oferim spre vanzare o casa individuala, cu o suprafață utilă de 119 metri pătrați și un teren de 440 metri pătrați, este amplasată într-o zonă liniștită din Dezmir, într-un cartier rezidențial nou, pe o stradă asfaltată, ce asigură acces facil și comoditate.
Casa este structurată pe două nivele: parter și etaj.
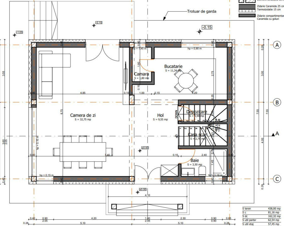
La parter, se regăsește un living generos, ideal pentru momentele de relaxare sau întâlnirile cu familia și prietenii. Bucătăria separată oferă suficient spațiu pentru gătit și organizat mesele, iar baia de la parter adaugă confort. De asemenea, există un spațiu de depozitare care asigură o gestionare eficientă a lucrurilor necesare în gospodărie.
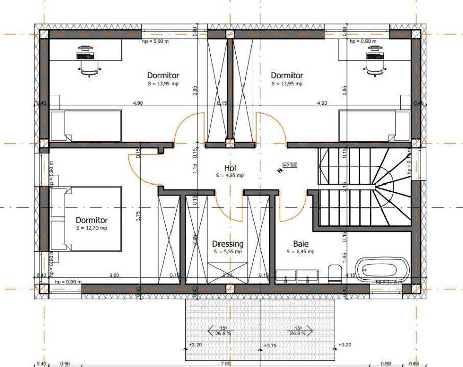
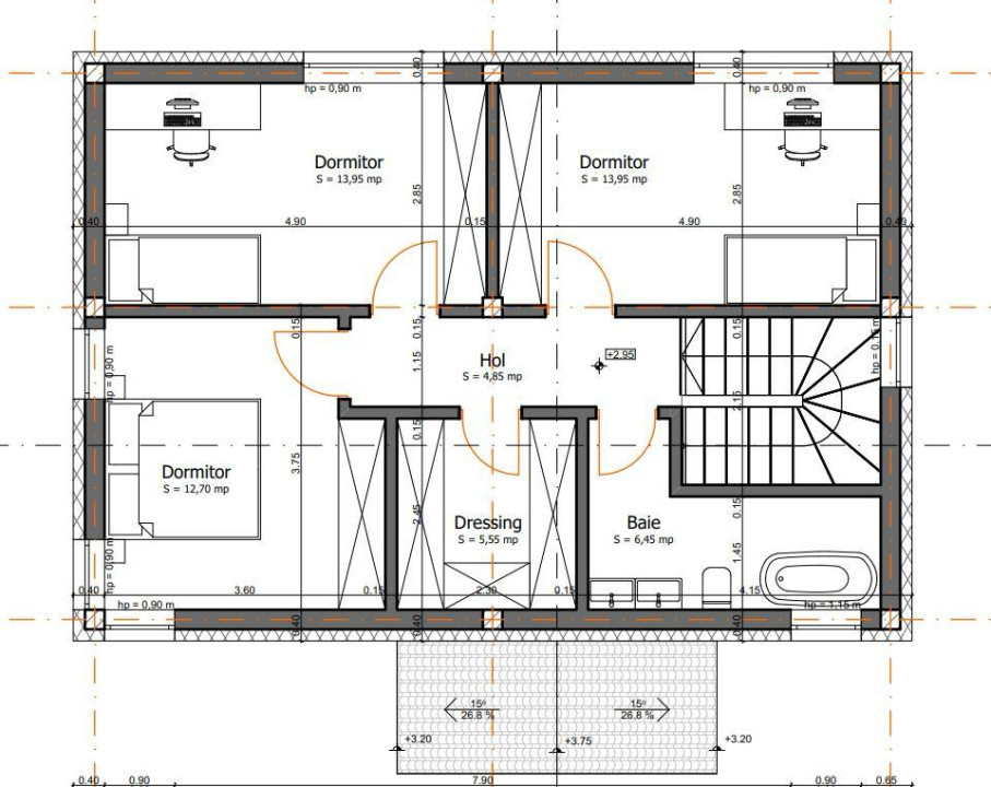
La etaj, se află un hol spațios ce face legătura între cele trei dormitoare, fiecare oferind suficient loc pentru a vă bucura de intimitate și relaxare. Baia de la etaj este bine amplasată, iar un dresing generos poate fi transformat cu ușurință într-o baie suplimentară, în funcție de preferințele noilor proprietari.
Peretii deja finisati in alb.
Curtea exterioară de 440 mp oferă potențialul pentru amenajarea unui spațiu verde personalizat sau pentru diverse activități de relaxare în aer liber. Casa reprezintă o alegere excelentă pentru o familie care își dorește un loc modern, confortabil și bine situat într-un cartier rezidențial deosebit.
Este o oportunitate rară de a achiziționa o locuință completă, într-o zonă în plină dezvoltare, ce combină liniștea cu accesibilitatea.
Va asteptam la vizionare . ID Extern : P8791